Karaktervol wonen met het comfort van nu, ontdek deze moderne eindwoning in de populaire wijk 'Juliahof'! 
 
Deze woning combineert het beste van twee werelden: de charmante uitstraling van de jaren ’30 met de duurzaamheid en het moderne wonen van nu. Denk aan hoge plafonds, een stijlvolle gevel, grote raampartijen én energielabel A met volledige isolatie en HR++ beglazing. 
 
Met vier ruime slaapkamers, een verzorgde zonnige achtertuin en een royale zolderverdieping met inloopkast, is dit een ideale woning voor gezinnen die op zoek zijn naar ruimte én een rustige woonomgeving.  
 
De wijk Juliahof staat bekend om zijn kindvriendelijke karakter en centrale ligging. Speeltuinen en sportverenigingen bevinden zich op loopafstand en dankzij de nabijgelegen uitvalswegen zijn Den Haag en Rijswijk uitstekend bereikbaar. Ook het gezellige centrum van Wateringen is binnen enkele minuten per fiets bereikbaar.  
Winkels, scholen, horecagelegenheden en openbaar vervoer? Alle voorzieningen liggen binnen handbereik! 
 
Nieuwsgierig geworden naar deze instapklare woning aan de Albert van Schoonhovenlaan? Bel vandaag nog voor een persoonlijke bezichtiging, wij leiden u graag rond. 
 
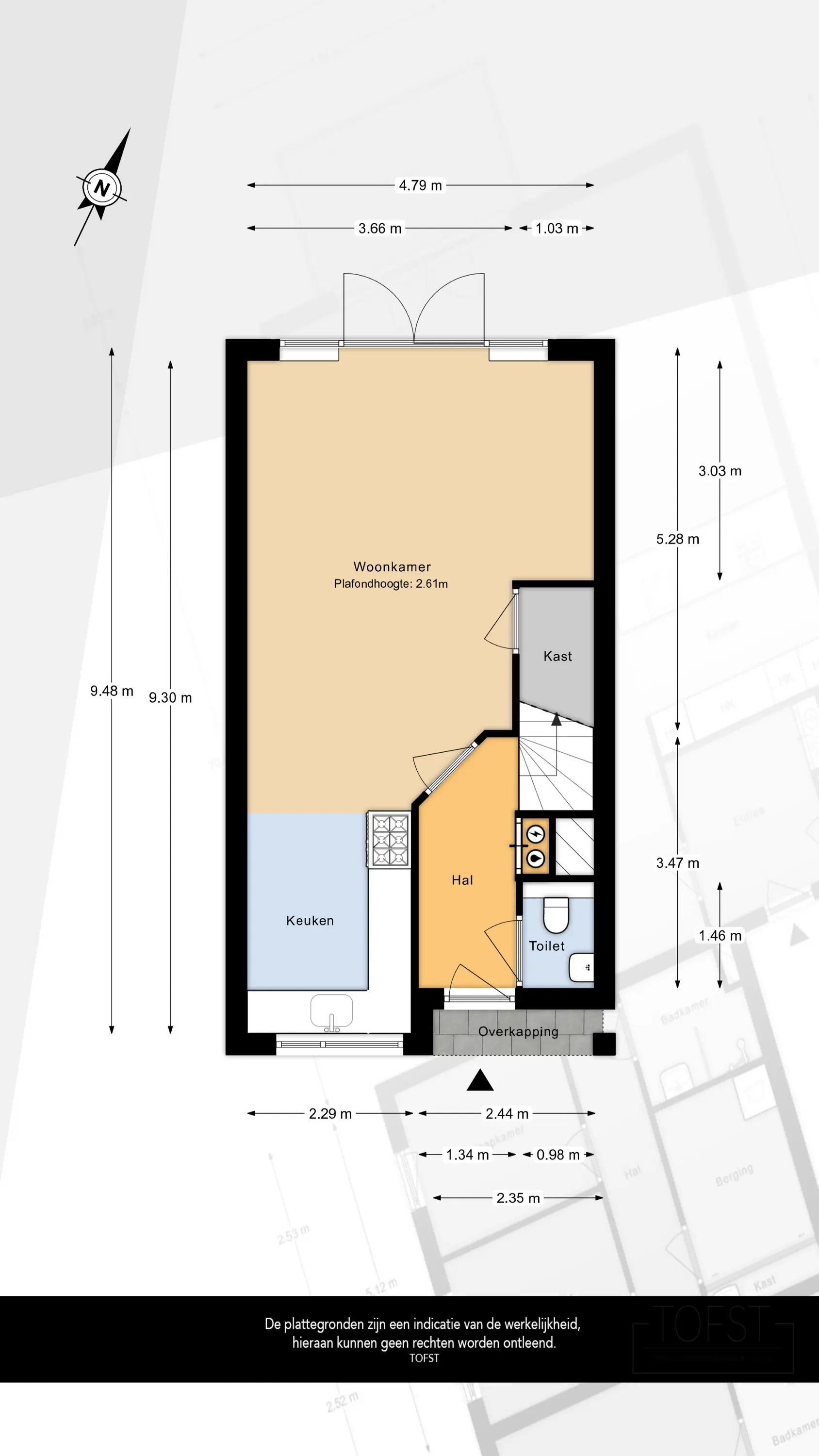
Begane grond; 
Via de verzorgd aangelegde voortuin bereikt u de entree van de woning.  
De hal is voorzien van een nette PVC vloer, meterkast, modern toilet met wandcloset en fonteintje, en trapopgang naar de eerste verdieping. 
 
De tuingerichte woonkamer is heerlijk licht en beschikt over een praktische trapkast, PVC vloer en vloerverwarming op de gehele begane grond. De royale openslaande deuren bieden toegang naar de achtertuin. 
Aan de voorzijde bevindt zich de keuken in hoekopstelling, compleet met alle benodigde inbouwapparatuur: een 6-pits gasfornuis met oven en afzuigkap, vaatwasser en spoelbak met mengkraan. 
 
De zonnige achtertuin ligt op het noordwesten en is fraai aangelegd met een terras, groene borders en een vrijstaande houten berging. Ideaal voor lange zomeravonden! Wat eveneens prettig is, is de poort aan de zijkant van de tuin.
 
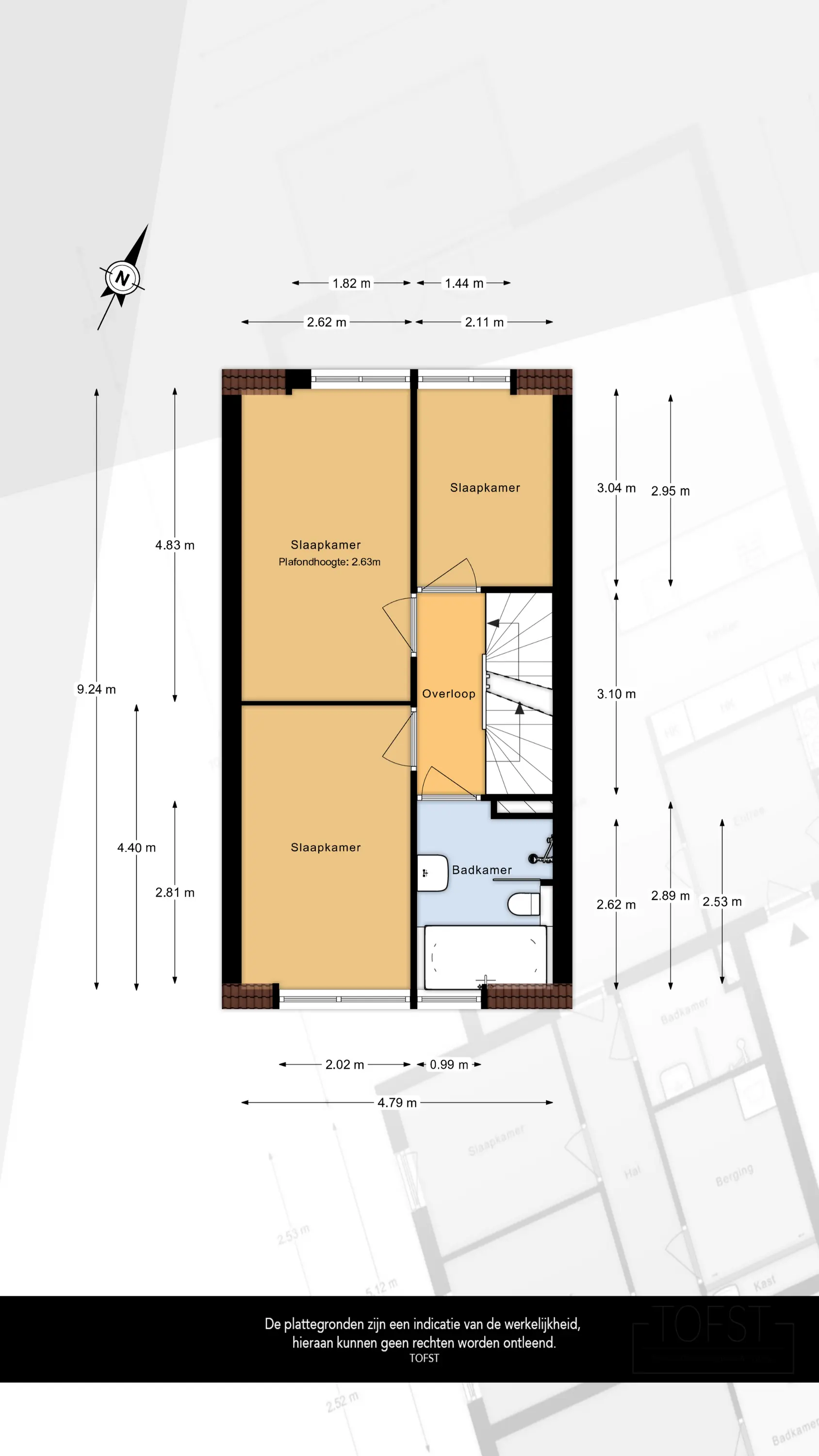
Eerste verdieping: 
De overloop biedt toegang tot drie goed bemeten slaapkamers, waarvan twee aan de achterzijde en één royale slaapkamer aan de voorzijde. Zowel de voor- als de achterzijde zijn voorzien van een dakkapel.
De overloop en twee slaapkamers op de verdieping zijn voorzien van laminaat, in het kantoor ligt zeil op de vloer. De kamers beschikken over radiatoren en te openen raampartijen met draai-/kiepfunctie. 
 
De moderne badkamer is volledig betegeld en uitgerust met een extra breed en diep ligbad, inloopdouche, tweede toilet, wastafelmeubel en designradiator. 
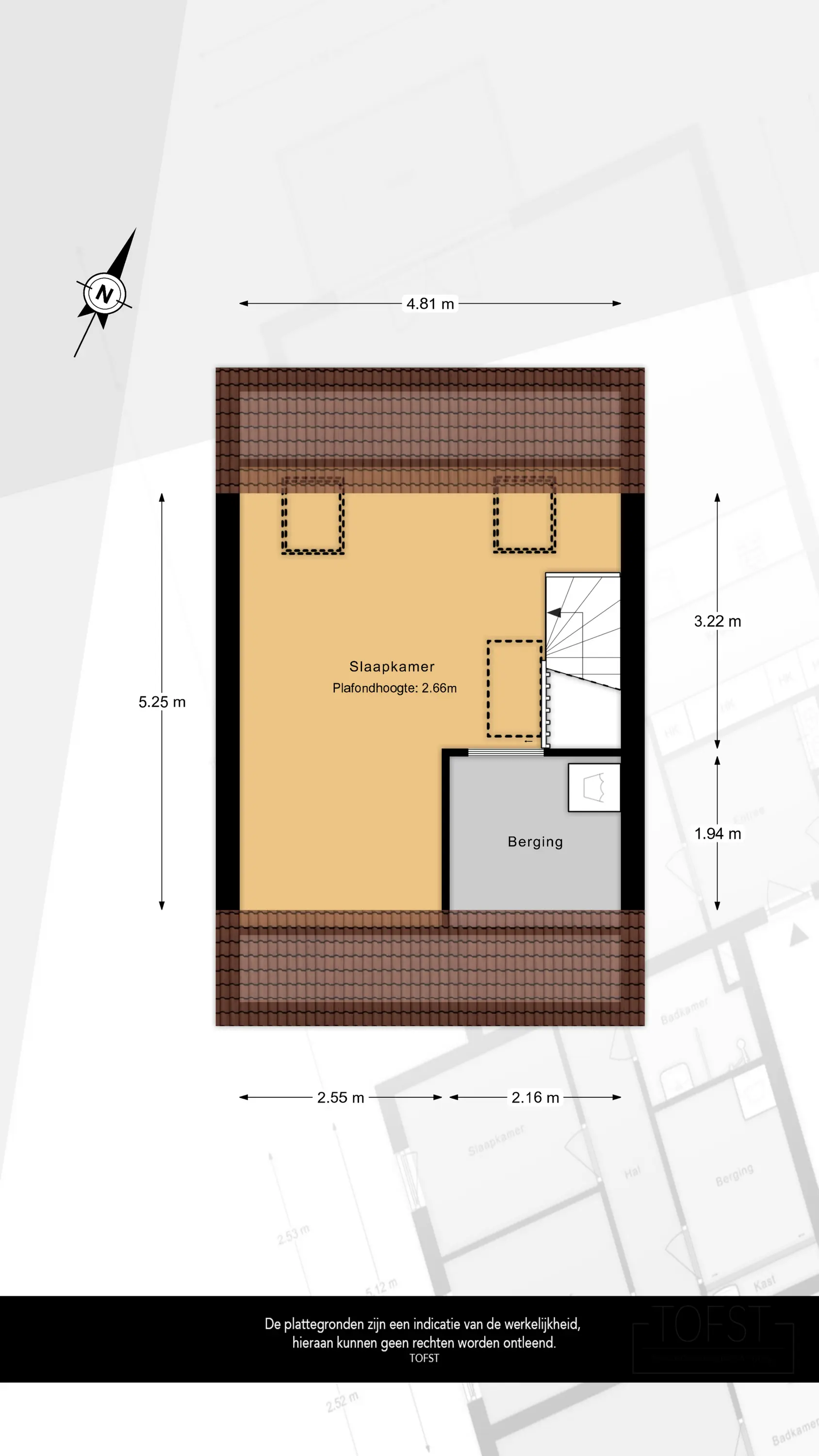
2e verdieping: 
Deze verdieping is ingericht als een ruime hoofdslaapkamer met sfeervolle houten vloer, dubbel dakraam aan de achterzijde en een praktische inloopkast. 
Daarnaast is er een afgesloten bergruimte met aansluitingen voor wasmachine en droger. Via een vlizotrap bereikt u nog een handige vliering. 
 
 
 
Bijzonderheden: 
- Royale eindwoning gelegen in de kindvriendelijke woonwijk 'Juliahof'; 
- Voorzien van vier slaapkamers, ruime woonkamer en vliering; 
- Moderne keuken en badkamer in neutrale kleurstelling;  
- Volledige isolatie en HR++ beglazing; 
- Voor- en achtertuin, gelegen op respectievelijk het zuidoosten en het noordwesten; 
- Bouwjaar 2011; 
- Energielabel A (het huidige label dateert van 2020 en zal inmiddels beter uitvallen);
- Voorzien van 12 zonnepanelen (2023);
- Perceel oppervlakte van ca. 148 m2; 
- Verwarming middels CV-installatie (Intergas, 2011) en vloerverwarming op de begane grond; 
- Vrijstaande houten berging van ca. 5 m2, v.v. elektra; 
- Voldoende parkeergelegenheid in de straat; 
- Op fietsafstand van het centrum van Wateringen met diverse winkels, horeca en sociale voorzieningen; 
- Uitvalswegen richting Den Haag en Rijswijk op zeer korte rij-afstand; 
- Oplevering in overleg.
                        
                         
                                             
                                             
                                             
                                                 
                                         
                                         
                                         
                                         
                                         
                                         
                                         
                                         
                                         
                                         
                                         
                                         
                                         
                                         
                                         
                                         
                                         
                                         
                                         
                                         
                                         
                                         
                                         
                                         
                                         
                                         
                                         
                                         
                                         
                                         
                                         
                                         
                                     
                                     
                                     
                                    