Bent u een buitenliefhebber en heeft u 2 rechterhanden? Dan is Ambachtsweg 41 in Wateringen zeker iets voor u!
Deze woning heeft een woonoppervlakte van ca. 92 m2 en beschikt over een riante voor- en achtertuin, een praktische bijkeuken, ruime woonkamer met open haard en een onlangs vernieuwde badkamer en toilet. 
De ligging is zeer centraal, zowel het dorpscentrum van Wateringen als winkelcentrum De Leyweg zijn op korte afstand gelegen. Tevens is het openbaar vervoer goed bereikbaar, evenals uitvalswegen richting Den Haag, Rotterdam en de overige dorpskernen van het Westland. 
Heeft u zin om hier de handen uit de mouwen te steken? Wij plannen graag een bezichtiging met u in.
Indeling:
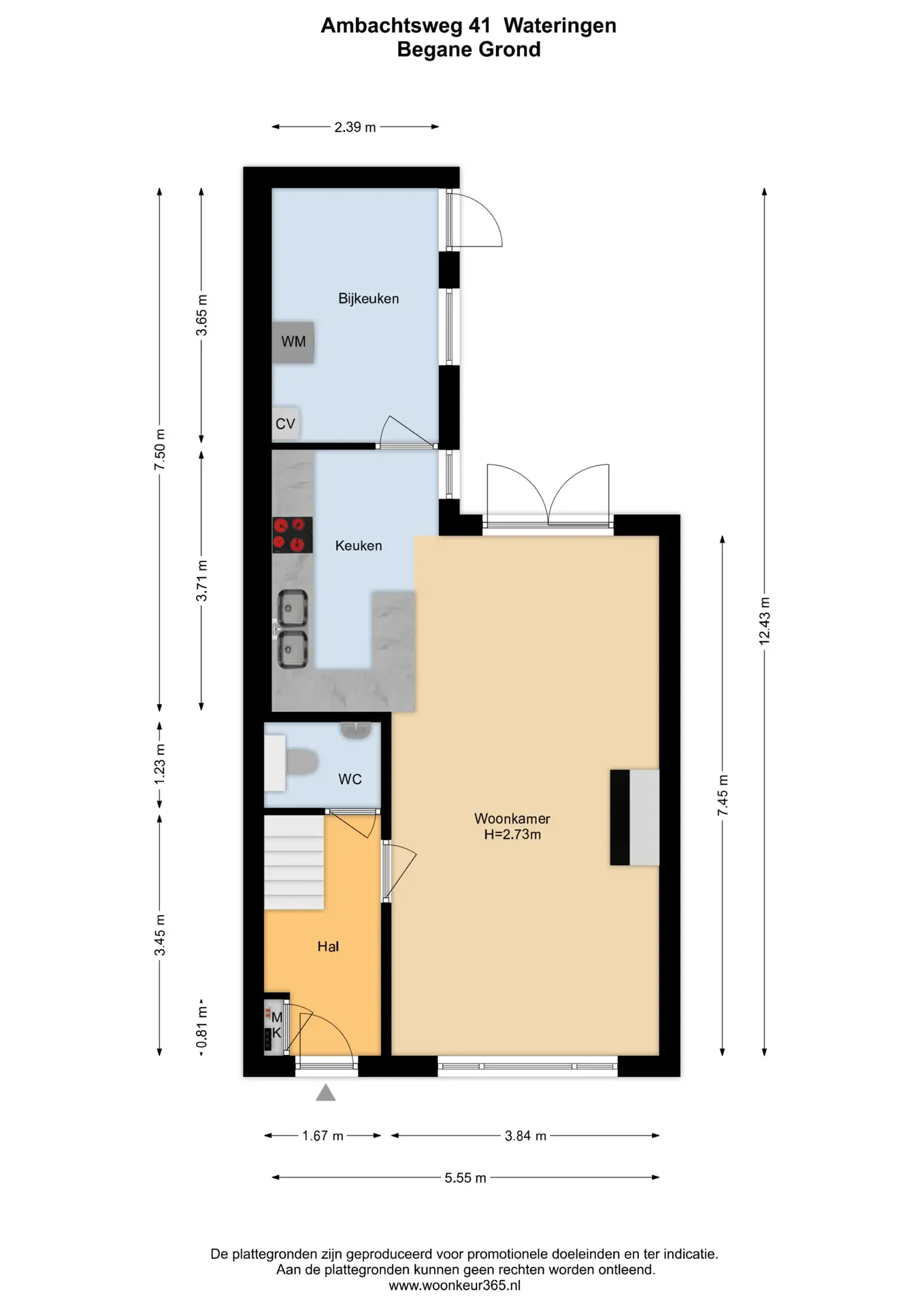
Begane grond:
Bestrate voortuin met groenstrook. Gezien de ligging op het zuidwesten is de aanwezige buitenzonwering aan de voorgevel zeer prettig om schaduw in de woonkamer te creëren. 
Entree in hal met meterkast, vaste trapopgang en toiletruimte (2020).
Glazen toegangsdeur naar de doorzon woonkamer, met centraal in de ruimte een sfeervolle open haard met schouw. 
Aan de achterzijde is de halfopen keuken gesitueerd, met praktische, aangrenzende bijkeuken. De keuken bestaat uit een L-opstelling met bar, die niet alleen zorgt voor een afscheiding met de woonkamer, maar waar u ook heerlijk kunt zitten als er gekookt wordt. 
De inbouwapparatuur bestaat uit een dubbele spoelbak met mengkraan, 4-pits gasfornuis met afzuigkap en oven, vaatwasser en koelkast. 
In de bijkeuken is zowel de opstelplaats voor de cv-ketel als de aansluiting voor wasmachine en droger gevestigd. Daarnaast is er nog voldoende ruimte voor extra opbergruimte. De aanwezige verwarming en het grote raam maken het eveneens mogelijk om deze ruimte eenvoudig bij de woonkamer te betrekken.
De achtertuin is zowel via een loopdeur vanuit de bijkeuken als via houten openslaande deuren vanuit de woonkamer toegankelijk. De diepte van de tuin maakt het mogelijk om hier diverse zithoeken te creëren, zowel in de schaduw als in de zon. Hoewel je er ’s ochtends al heerlijk van de zon kunt genieten, staat in het grootste gedeelte van het voorjaar en de zomer de zon nagenoeg de hele dag in de achtertuin. 
Achterin de tuin is een vrijstaand stenen berging, voorzien van elektra, en een achterom. 
Eerste verdieping:
Een vaste trapopgang leidt naar de overloop, vanwaar toegang tot twee goed bemeten slaapkamers en een ruime badkamer (2020). 
De grootste slaapkamer is gevestigd aan de achterzijde van de woning. Naast vaste kastruimte in een plafondhoge schuifkast beschikt de kamer over veel daglicht dankzij het grote raam en de openslaande deur. Ook de slaapkamer aan de voorzijde heeft een grote raampartij met houten kozijnen en te openen raam. 
In 2020 is de badkamer op de verdieping vernieuwd. De ruimte is neutraal betegeld tot het plafond en ingericht met inloopdouche met glazen wand, wastafelmeubel met grote wandspiegel en tweede toilet. 
Vanaf de overloop is middels een vlizotrap een royale bergvliering te bereiken, ideaal voor het opbergen van uw spullen.
Bijzonderheden:
- Bouwjaar 1929;
- Energielabel C;
- De woning is in 1977 volledig gerenoveerd;
- Ruime tussenwoning met diepe voor- en achtertuin; 
- Achtertuin met vrijstaand, stenen berging en achterom; 
- Badkamer en toiletruimte vernieuwd in 2020; 
- Voorzijde woning voorzien van geïsoleerd glas; 
- Buitenzijde woning geschilderd in 2023;
- In de koopovereenkomst zullen de volgende clausules worden opgenomen: ouderdoms- en materiaalclausule, asbestclausule en geen zelfbewoning; 
- Oplevering in overleg.
                        
                         
                                             
                                             
                                             
                                                 
                                         
                                         
                                         
                                         
                                         
                                         
                                         
                                         
                                         
                                         
                                         
                                         
                                         
                                         
                                         
                                         
                                         
                                         
                                         
                                         
                                         
                                         
                                         
                                         
                                         
                                         
                                         
                                         
                                         
                                         
                                         
                                         
                                         
                                     
                                     
                                    