Duiventorenstraat 57

NAALDWIJK

verkocht onder voorbehoud

verkocht onder voorbehoud

Geinteresseerd?

Omschrijving

Een jaren ’30 woning met karakter, vernieuwde zolder en een royale tuin!

De Duiventorenstraat 57 is een woning die direct opvalt door zijn jaren ’30 uitstraling: fraaie ramen met kleuraccenten, sfeervolle erker en andere karakteristieke details geven het huis een warme en eigen sfeer. Tegelijkertijd zijn er in de afgelopen jaren grote verbeteringen doorgevoerd. Zo is in 2024 de tweede etage voorzien van een nokverhoging, dakkapel en isolatie, waardoor er een lichte en ruime verdieping is ontstaan. Ook het dak is in 2024 vernieuwd en het schilderwerk aan de buitenzijde is recent uitgevoerd (2025).

Met drie slaapkamers, een extra werk- of slaapkamer op de eerste etage en een volwaardige tweede verdieping is er ruimte genoeg voor een gezin. De diepe tuin biedt meerdere zitplekken en is daarmee een fijne plek om te ontspannen of samen te komen. De ligging maakt het plaatje compleet: een rustige straat waar kinderen veilig kunnen buitenspelen, met winkels, horeca en het marktplein op loopafstand. Parkeren kan bovendien gemakkelijk voor de deur.

Mogen wij u binnenkort rondleiden?


Indeling
Begane grond:
Bij binnenkomst treft u de entree met ingebouwde meterkast en een nette tegelvloer. Een tussendeur leidt naar de ruime hal met trapopgang en een modern toilet.

De keuken bevindt zich links van de hal en is uitgevoerd met een strak zwart werkblad, een Quooker, gasfornuis en oven (2022). Achter de keuken ligt een praktische bijkeuken met kastruimte en een deur naar de tuin.

De woonkamer loopt over de volle diepte van de woning en is ingedeeld in twee gedeelten. Aan de voorzijde een zitkamer met erker, voorzien van grote ramen die veel licht binnenlaten. Aan de achterzijde een eetkamer die in direct contact staat met de tuin. Via dubbele deuren stapt u zo naar buiten, waardoor de eetkamer in de zomer een verlengstuk van de tuin wordt.

De tuin zelf is royaal en grotendeels groen. Er is ruimte genoeg om verschillende zitjes of een loungehoek te creëren. De stenen plantenbak geeft de tuin extra uitstraling en biedt mogelijkheden voor bloemen of andere beplanting. Ook de voortuin is een fijne plek, perfect om in de ochtendzon van een kop koffie te genieten.

Eerste verdieping:
De trapopgang leidt u naar de overloop, die eveneens de stijl van de woning weerspiegelt door het zorgvuldig gekozen behang. Direct rechts vindt u een ruime slaapkamer, die extra sfeer krijgt dankzij de grote raampartij aan de voorzijde van het huis. Bovendien beschikt de kamer over een royale ingebouwde kastenwand van circa 4 meter, waardoor er volop opbergruimte is.

De badkamer is centraal gesitueerd en ingericht met een ligbad met douchefunctie en een wastafel. De bijzondere vloertegel geeft deze ruimte een eigen karakter.
Naast de badkamerdeur bevindt zich de tweede slaapkamer van de eerste etage. Momenteel wordt deze kamer gebruikt als kantoor/werkplek, maar hij is ruim genoeg om als slaapkamer te dienen. De andere kamer is multifunctioneel en wordt nu gebruikt als doorgang naar de tweede verdieping, maar kan eenvoudig weer ingericht worden als slaap- of werkkamer.


Tweede verdieping:
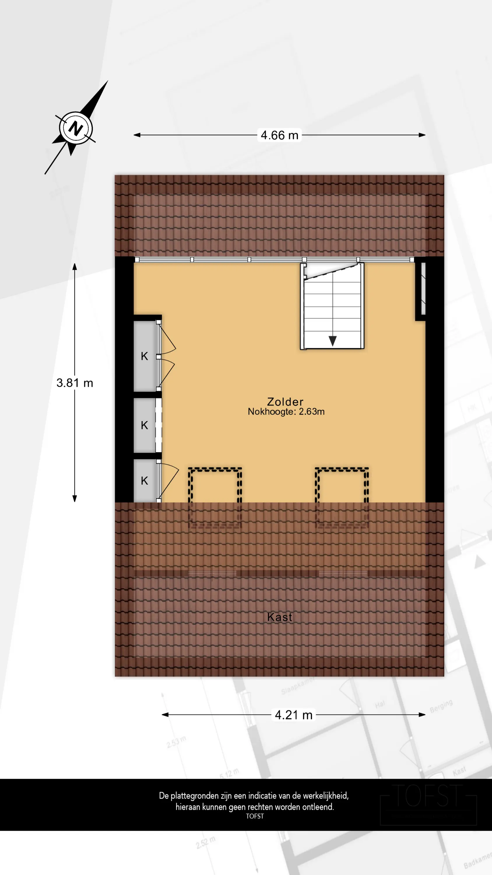
De zolder is in 2024 aanzienlijk vergroot door een nokverhoging, nieuw dak en voorzien van isolatie. Hierdoor is een volwaardige verdieping ontstaan met veel licht en ruimte. Aan de achterzijde bevindt zich tevens een nieuwe dakkapel met een brede raampartij over de hele breedte van het huis. Aan de voorzijde zijn twee dakramen geplaatst, waardoor er ook daar veel daglicht binnenkomt. Onder de schuine wanden zijn praktische kasten ingebouwd die voor extra bergruimte zorgen.

De nieuwe laminaatvloer maakt de ruimte direct bruikbaar. De verdieping is geschikt als slaapkamer, werkkamer of hobbyruimte, en biedt volop mogelijkheden voor een gezin dat extra ruimte zoekt.


Bijzonderheden:
- Jaren ’30 woning met karakteristieke erker en originele details;
- Volledig nieuw zadeldak (2024);
- Nokverhoging met isolatie en nieuwe laminaatvloer op de tweede verdieping (2024);
- Nieuw mechanisch ventilatiesysteem (Duco Silent, 2024);
- Zolder volledig voorzien van nieuwe bedrading, stopcontacten en rookgasafvoer (2024);
- Buitenkozijnen en ramen grotendeels geschilderd in 2025;
- Buiten schilderwerk planmatig bijgehouden;
- HR++ beglazing in de meeste ramen;
- Intergas CV-ketel is vervangen in 2024;
- Kunststof dakkapel;
- Quooker Pro3 in de keuken;
- Ruime achtertuin met mogelijkheden voor meerdere zitplekken;
- Voortuin op het oosten, ideaal voor de ochtendzon;
- Drie slaapkamers en extra werk-/slaapkamer op de eerste verdieping;
- Tweede verdieping met veel licht door brede raampartij en twee dakramen;
- Rook- en CO2-melder aanwezig op de zolder;
- Rustige en kindvriendelijke straat met voldoende parkeergelegenheid;
- Winkels, horeca en het marktplein op loopafstand;
- Oplevering in overleg.
Lees meer

Kenmerken

Overdracht

Vraagprijs
€ 460.000,- k.k.
Status
verkocht onder voorbehoud
Aanvaarding
in overleg

Bouw

Soort woning
woonhuis
Soort woonhuis
eengezinswoning
Type woonhuis
tussenwoning
Aantal woonlagen
3
Bouwvorm
bestaande bouw
Bouwjaar
1928
Huidige bestemming
woonruimte
Onderhoud binnen
goed
Onderhoud buiten
goed
Voorzieningen
mechanische ventilatie, tv kabel, dakraam, glasvezel kabel
Isolatie
dakisolatie, dubbel glas

Energie

Energielabel
C
Verwarming
cv ketel
Warm water
cv ketel
C.V.-ketel
gas gestookte combi-ketel uit 2024 van Intergas, eigendom

Oppervlakten en inhoud

Woonoppervlakte
111 m²
Perceeloppervlakte
119 m²
Inhoud
410 m³
Buitenruimte oppervlakte
1 m²

Indeling

Aantal kamers
5
Aantal slaapkamers
4

Buitenruimte

Ligging
aan rustige weg, in woonwijk
Tuin
achtertuin met een oppervlakte van 36 m² en is gelegen op het noordwesten

Garage / Schuur / Berging

Garage
geen garage
Parkeergelegenheid
openbaar parkeren
Schuur/berging
aangebouwd steen

Plattegronden

Locatie

Downloads

Neem contact met ons op!