Fossastraat 45

NAALDWIJK

beschikbaar

€ 610.000,- k.k.

Geinteresseerd?

Omschrijving

Ruime eengezinswoning uit 2020 in de populaire wijk Hoogeland!

In de populaire en jonge woonwijk Hoogeland ligt deze moderne en instapklare eengezinswoning aan de Fossastraat 45.
Met een woonoppervlakte van circa 127 m², een slimme indeling en een zonnige achtertuin op het zuiden biedt deze woning alles wat u zoekt in comfortabel en toekomstbestendig wonen. De woning beschikt over drie volwaardige slaapkamers en een ruime zolderverdieping die eenvoudig kan worden ingericht als vierde slaapkamer, thuiswerkplek of hobbyruimte.

Dankzij de volledige isolatie, vloerverwarming op zowel de begane grond als de eerste verdieping, drie zonnepanelen (uitbreidbaar) en energielabel A woont u hier zeer energiezuinig. Tevens is er in elke kamer vloerverwarming aanwezig, welke per kamer instelbaar is.

Niet alleen de woning zelf biedt veel wooncomfort, ook de ligging is ideaal. De woning is gelegen in de populaire wijk Hoogeland, op loopafstand van het centrum van Naaldwijk. In de directe omgeving vindt u diverse voorzieningen zoals scholen, sportverenigingen, winkels, supermarkten en gezellige horecagelegenheden.

Bent u geïnteresseerd na het zien van de foto's, aarzel niet en neem contact op met ons kantoor voor een persoonlijke bezichtiging!

Indeling:
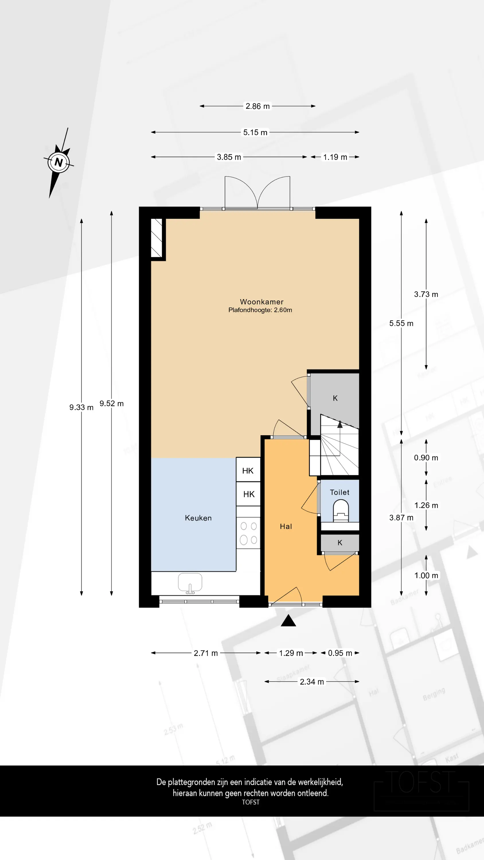
Begane grond:
Via de Fossastraat bereikt u de entree van de woning. Bij binnenkomst komt u in de hal, die toegang biedt tot het toilet, de meterkast, de trap naar de eerste verdieping en de deur naar de woonkamer.

De woonkamer is royaal van opzet en afgewerkt met een stijlvolle stenen vloer met houtlook. Aan de achterzijde van de woning bevindt zich de comfortabele zithoek, grenzend aan de openslaande deuren naar de tuin. Naast de tv is een sfeervolle haard gesitueerd, wat bijdraagt aan een warme en gezellige uitstraling.

Aan de voorzijde van de woning bevindt zich de eethoek, die in open verbinding staat met de keuken. De moderne open keuken is uitgevoerd in mat zwart en voorzien van een zwart stenen werkblad. Daarnaast beschikt de keuken over diverse inbouwapparatuur, waaronder een inductiekookplaat, afzuiginstallatie, combi-oven, koelkast, vriezer en vaatwasser.

De zonnige achtertuin is gelegen op het zuiden en biedt volop mogelijkheden om meerdere zitplekken te creëren. In de tuin bevindt zich tevens een houten berging, ideaal voor het stallen van fietsen of een scooter. De berging is ook bereikbaar via de praktische achterom.

Eerste verdieping:
Via de luxe trapbekleding komt u uit op de eerste verdieping en heeft toegang tot drie slaapkamers, de badkamer en de trap naar de tweede verdieping/zolder.

De hoofdslaapkamer is gelegen aan de achterzijde van de woning en beschikt over een ruime raampartij wat zorgt voor veel natuurlijke lichtinval. Daarnaast is de kamer voorzien van een vaste kastenwand, ideaal voor het opbergen van uw kleding.

De tweede slaapkamer bevindt zich eveneens aan de achterzijde van de woning en is momenteel in gebruik als kinderkamer en is licht en praktisch van formaat.

De derde (slaap)kamer is gelegen aan de voorzijde van de woning en wordt momenteel gebruikt als werkplek/kantoor. Dankzij het ruime formaat en de goede lichtinval is deze kamer ook uitstekend geschikt als volwaardige slaapkamer.

De badkamer is eveneens aan de voorzijde van de woning gesitueerd. Deze is voorzien van een inloopdouche, een wastafelmeubel en een toilet. Daarnaast beschikt de badkamer over een raampartij, waardoor natuurlijke ventilatie mogelijk is. De badkamer is afgewerkt met een combinatie van witte tegels en bruin/grijs getinte tegels, wat zorgt voor een tijdloze en verzorgde uitstraling.

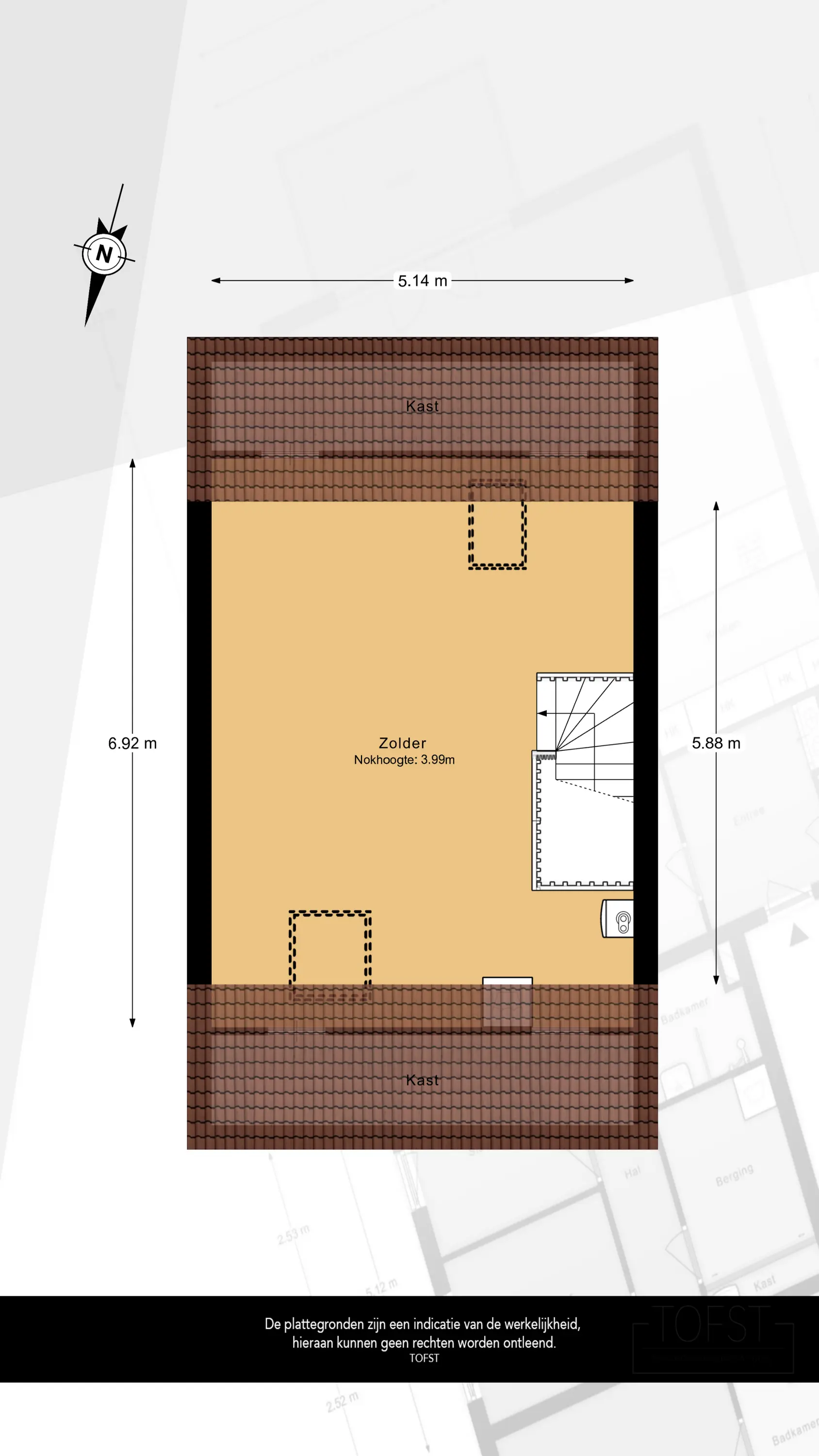
Tweede verdieping:
De tweede verdieping is momenteel open ingedeeld en beschikt over twee dakramen. Deze verdieping kan eenvoudig worden verdeeld in een vierde en zelfs vijfde slaapkamer, maar is ook uitstekend te gebruiken als hobbykamer of werkplek, zoals bijvoorbeeld een salon aan huis.

Daarnaast bevinden zich op deze verdieping de aansluitingen voor de wasmachine en droger, evenals de cv-installatie.


Bijzonderheden:
- Moderne, instapklare eengezinswoning uit 2020 in de populaire wijk Hoogeland;
- Energielabel A;
- Woonoppervlakte ca. 127 m²;
- Vrij zicht aan de voorzijde van de woning;
- Verlaagd plafond met spots;
- Optie tot uitbouw;
- Standaard zeer goede parkeergelegenheid;
- Drie volwaardige slaapkamers op de eerste verdieping;
- Ruime tweede verdieping geschikt voor vierde/vijfde slaapkamer, werkruimte of hobbykamer;
- Energiezuinig: volledig geïsoleerd, energielabel A en voorzien van 3 zonnepanelen (uitbreidbaar);
- Begane grond en eerste verdieping voorzien van vloerverwarming;
- Ideale ligging in kindvriendelijke wijk op loopafstand van het centrum van Naaldwijk;
- Nabij scholen, sportverenigingen, winkels, supermarkten en horecagelegenheden;
- Oplevering na de zomer;
Lees meer

Kenmerken

Overdracht

Vraagprijs
€ 610.000,- k.k.
Status
beschikbaar
Aanvaarding
in overleg

Bouw

Soort woning
woonhuis
Soort woonhuis
eengezinswoning
Type woonhuis
tussenwoning
Aantal woonlagen
3
Bouwvorm
bestaande bouw
Bouwjaar
2020
Huidige bestemming
woonruimte
Onderhoud binnen
goed
Onderhoud buiten
goed
Voorzieningen
mechanische ventilatie, tv kabel, buitenzonwering, glasvezel kabel, zonnepanelen
Isolatie
volledig geisoleerd

Energie

Energielabel
A
Verwarming
cv ketel, vloerverwarming gedeeltelijk
Warm water
cv ketel
C.V.-ketel
gas gestookte combi-ketel uit 2019 van Intergas, eigendom

Oppervlakten en inhoud

Woonoppervlakte
127 m²
Perceeloppervlakte
116 m²
Inhoud
464 m³
Bergruimte oppervlakte
7 m²

Indeling

Aantal kamers
5
Aantal slaapkamers
3

Buitenruimte

Ligging
in woonwijk
Tuin
achtertuin met een oppervlakte van 47 m² en is gelegen op het zuiden

Garage / Schuur / Berging

Garage
geen garage
Parkeergelegenheid
openbaar parkeren
Schuur/berging
vrijstaand hout

Plattegronden

Locatie

Downloads

Neem contact met ons op!