Hendrik van Naaldwijkstraat 9

NAALDWIJK

beschikbaar

€ 495.000,- k.k.

Geinteresseerd?

Omschrijving

Goed onderhouden en ruime hoekwoning gelegen nabij het gezellige centrum van Naaldwijk.
Hendrik van Naaldwijkstraat 9 kenmerkt zich door een doorzon woonkamer, drie ruime slaapkamers, royale zolderverdieping en een ruime achtertuin met sfeervolle serre.
De stenen berging van ca. 13 m2 betreft voor de echte klussers een absolute pré!

De woning is gelegen op een steenworp afstand van het centrum van Naaldwijk met alle voorzieningen binnen handbereik. De buurtwinkels op de Geestweg, diverse winkels in het centrum, scholen en horecagelegenheden zijn allemaal binnen loopafstand te bereiken.

Het geheel is goed verzorgd en biedt tal van duurzame voorzieningen, zoals dak- en vloerisolatie en tevens 12 zonnepanelen op het hoofddak. Hiermee is het huis niet alleen charmant maar ook toekomstbestendig, wat tevens wordt bevestigd door het definitieve Energielabel B.

Bent u enthousiast geworden na het zien van de foto’s? Wij plannen graag een bezichtiging met u in!

Indeling
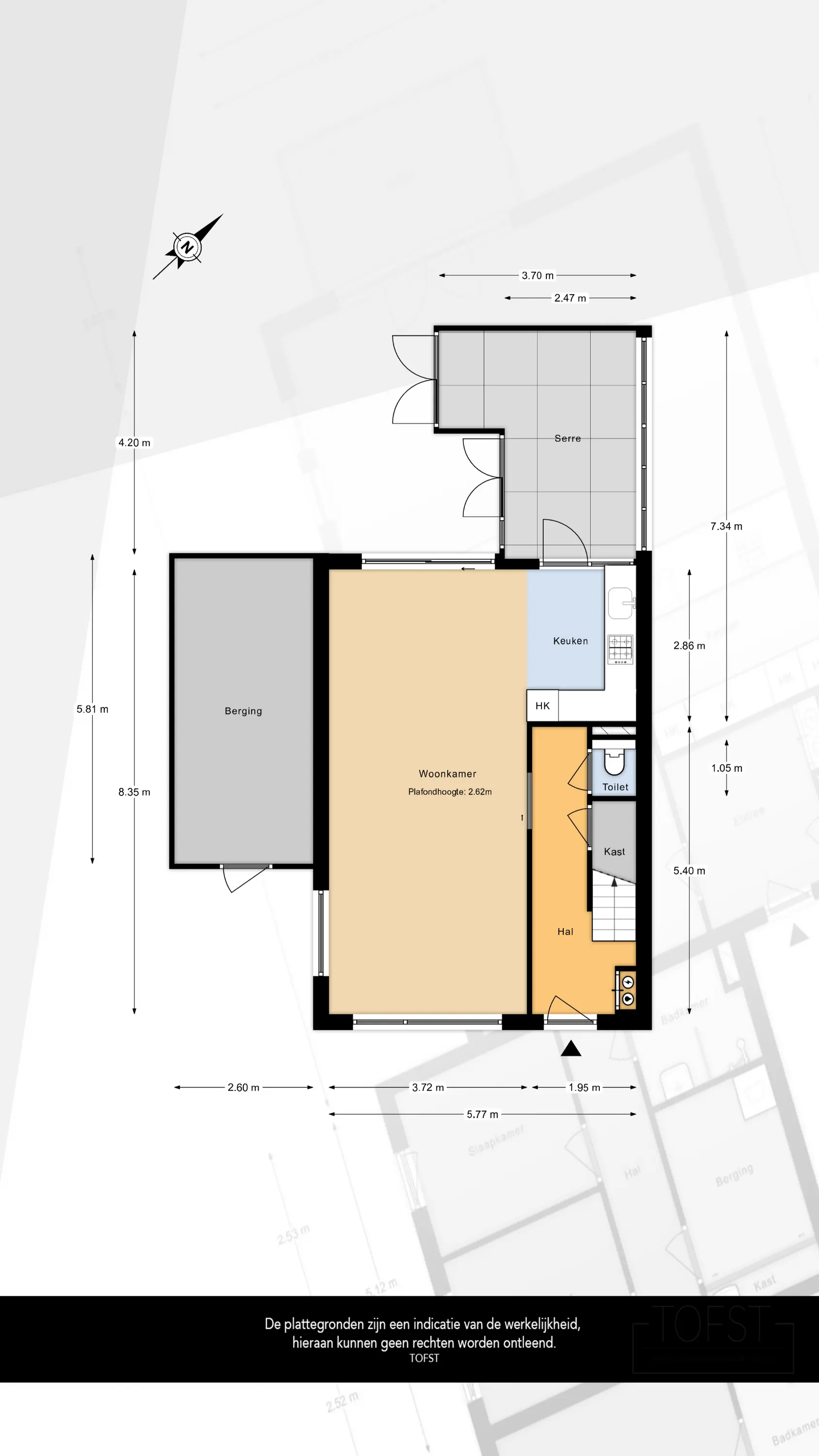
Begane grond:
U betreedt de woning middels de bestraatte voortuin welke leidt tot de voordeur. U komt aan in de hal voorzien van een toiletruimte, deur naar de woonkamer, vaste trapopgang naar boven, trapkast en meterkast.
De doorzonwoonkamer is voorzien van veel lichtinval door het voor-, zij- en achterraam.
In de woonkamer ligt een plavuizenvloer voorzien van vloerverwarming en er is voldoende ruimte voor een gezellige zit- en eethoek. In het midden van de woonkamer situeert een houten balk voorzien van lichtspots. Ook is er een airconditioning aanwezig.

Aan de achterzijde van de woning bevindt zich de open keuken (2020) in L-opstelling met diverse inbouwapparatuur, te weten een 4-pits gasfornuis, afzuigkap, vaatwasser, combioven, koelkast en vriezer. Via de keuken is de serre te bereiken. Deze speelse ruimte voorzien van vloerverwarming is op dit moment ingericht als bar, waar u met vrienden kan genieten van een borreltje, ideaal voor verjaardagen.

De tuin, welke te bereiken is via de serre en via een schuifpui, is gesitueerd op het noordwesten.
De aangebouwde stenen berging van maar liefst 13 m2 met elektra en een geïsoleerd dak, biedt voldoende bergruimte. Aan de berging zit een overkapping verbonden om droog uw fietsen te kunnen stallen.
Via deze overkapping komt u uit aan de voorzijde van de woning.

Eerste verdieping:
U komt aan op de overloop welke toegang biedt tot de drie slaapkamers en badkamer.
De hoofdslaapkamer is gesitueerd aan de achterzijde en voorzien van airconditioning, gestuct plafond met lichtspots en een rolluik. Tevens is hier een inbouwkast aanwezig, welke ideaal is voor extra opbergruimte.
De tweede slaapkamer, ook gesitueerd aan de achterzijde van de woning, is voorzien van een laminaatvloer en inbouwspots.

De badkamer aan de voorzijde van de verdieping, is opgesteld in een neutrale kleurstelling en voorzien van een inloopdouche, toilet, radiator en een steigerhouten wastafelmeubel.

De derde slaapkamer op deze verdieping bevindt zich aan de voorzijde, naast de badkamer.
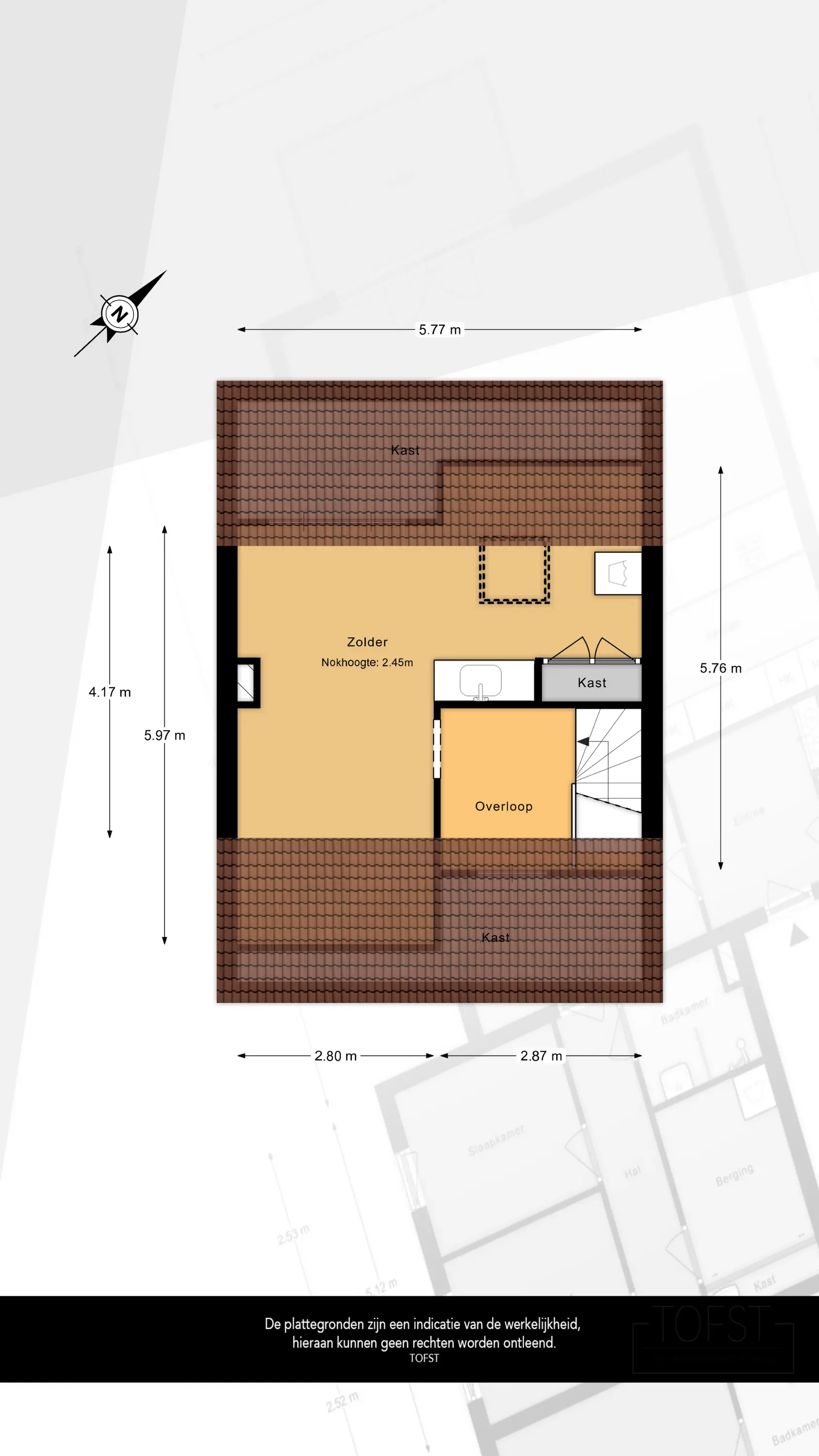
Op de overloop van de eerste verdieping is een vaste bergingskast aanwezig.

Tweede verdieping:
Tweede verdieping met overloop, welke toegang biedt tot de royale zolderverdieping.
De zolder is ruim bemeten en eenvoudig aan te wenden als vierde slaapkamer.
De ruimte beschikt over een dakraam en de aansluitingen voor het plaatsen van de wasmachine en droger. Er is veel bergruimte aanwezig achter de knieschotten.

Bijzonderheden:
- Ruime hoekwoning op een perceel van 161 m²;
- Bouwjaar 1957, met veel renovaties en aanpassingen door de jaren heen;
- Energielabel B;
- Schuim betonnen vloer op de begane grond, houten vloeren op de verdiepingen;
- Houten verdiepingsvloeren (na)geïsoleerd;
- Geïsoleerd dak;
- Kunststof kozijnen met isolatieglas;
- 12 zonnepanelen;
- Royale stenen schuur van ca. 13 m2;
- Recent vernieuwde elektra en leidingwerk door de gehele woning;
- Riolering onder de woning vernieuwd;
- Schoorsteen in 2024 onderhouden; voegwerk + lood vernieuwd, schoorsteen geïmpregneerd;
- Royale tuin gelegen op het noordwesten;
- Watertank (1000 liter) aanwezig onder de bestrating van de achtertuin, waarop het hemelwater wordt afgevoerd;
- Buitengevel gestraald en opnieuw gevoegd;
- Oplevering: maandag 23 februari 2026.
Lees meer

Kenmerken

Overdracht

Vraagprijs
€ 495.000,- k.k.
Status
beschikbaar
Aanvaarding
in overleg

Bouw

Soort woning
woonhuis
Soort woonhuis
eengezinswoning
Type woonhuis
hoekwoning
Aantal woonlagen
3
Bouwvorm
bestaande bouw
Bouwjaar
1957
Huidige bestemming
woonruimte
Onderhoud binnen
goed
Onderhoud buiten
goed
Voorzieningen
rolluiken, tv kabel, buitenzonwering, airconditioning, schuifpui, dakraam, zonnepanelen
Isolatie
dakisolatie, vloerisolatie, hr glas

Energie

Energielabel
B
Verwarming
cv ketel, vloerverwarming gedeeltelijk
Warm water
cv ketel
C.V.-ketel
gas gestookte combi-ketel uit 2000 van Nefit Excellent, eigendom

Oppervlakten en inhoud

Woonoppervlakte
121 m²
Perceeloppervlakte
161 m²
Inhoud
483 m³
Inpandige ruimte oppervlakte
15 m²
Buitenruimte oppervlakte
13 m²

Indeling

Aantal kamers
5
Aantal slaapkamers
4

Buitenruimte

Ligging
in woonwijk
Tuin
achtertuin met een oppervlakte van 42 m² en is gelegen op het noordwesten

Garage / Schuur / Berging

Garage
geen garage
Parkeergelegenheid
openbaar parkeren
Schuur/berging
aangebouwd steen

Plattegronden

Locatie

Downloads

Neem contact met ons op!