Luxe casco appartement in duurzaam complex te Honselersdijk!
Welkom in dit ruime appartement op de tweede verdieping van een modern en duurzaam appartementencomplex aan de Johan van Oldenbarneveldtstraat in Honselersdijk. Het gebouw combineert luxe met duurzaamheid, is gasloos en biedt de ideale plek voor mensen die op zoek zijn naar een gelijkvloers wonen in een energiezuinig (t)huis.
De locatie is ideaal: centraal gelegen aan de rand van een rustige woonwijk, op loopafstand van het gezellige centrum van Honselersdijk. Hier vindt u een grote landelijke supermarkt en een verscheidenheid aan ambachtelijke winkels, waaronder een bakker, slager en diverse horecagelegenheden. Daarnaast zijn de uitvalswegen naar grote steden zoals Den Haag en Rotterdam binnen enkele autominuten bereikbaar.
Bijzonder is de ligging aan doorgaand vaarwater, ideaal voor de watersportliefhebber: u kunt zo het water op! Ook de nabijheid van tennisvereniging TCH Honselersdijk biedt extra sportieve mogelijkheden. Bovendien is er rondom het complex voldoende openbare parkeergelegenheid.
Dit appartementencomplex bestaat uit zowel koop- als huurappartementen, die allemaal beschikken over een eigen berging en een parkeerplaats op het achtergelegen parkeerterrein. De actieve VvE zorgt ervoor dat het gebouw goed onderhouden wordt en de bewoners kunnen rekenen op een ordentelijk gebruik van de gemeenschappelijke ruimtes. Daarnaast is er een lift aanwezig, wat het gebouw ook geschikt maakt voor ouderen of minder validen.
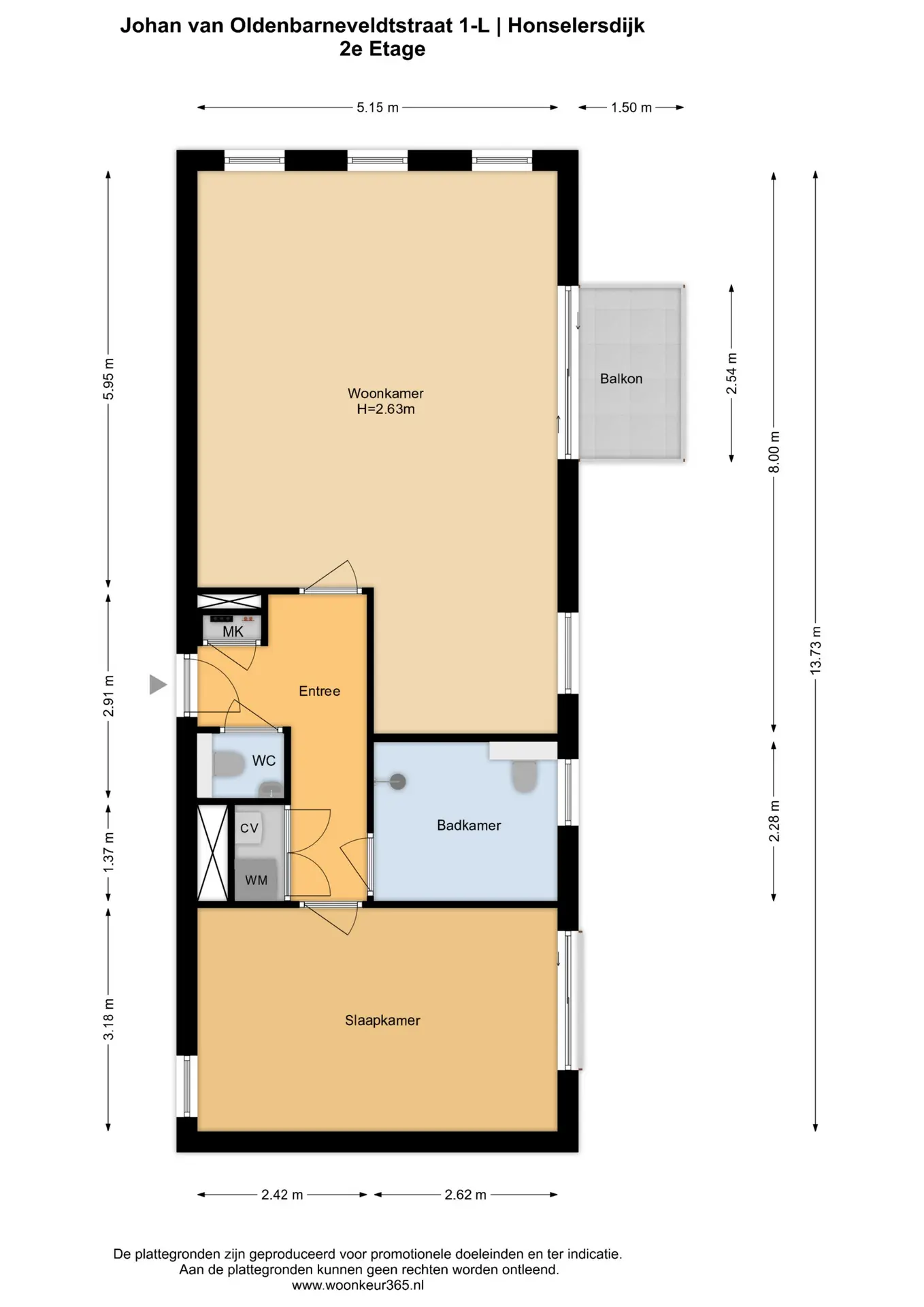
Indeling
Bij binnenkomst van het appartement wordt u verwelkomd in een ruime hal die toegang biedt tot alle vertrekken. Het appartement beschikt over een royale woonkamer, een slaap- en badkamer, een aparte ruimte voor wasmachine, droger en de warmtepompinstallatie, en een separate toiletruimte.
De woonkamer, gelegen aan de linkerzijde van de hal, heeft een prettige indeling en biedt toegang tot een gezellig balkon met uitzicht op de hoofdweg. Dankzij de grote raampartijen aan twee zijden van de woonkamer geniet u van veel natuurlijke lichtinval. De ruimte biedt tal van mogelijkheden om het geheel naar uw eigen smaak en inzicht in te richten.
De ruime slaapkamer bevindt zich aan de rechterzijde van het appartement, naast de badkamer. De badkamer is groot genoeg om een toilet, ligbad, douche en wastafelmeubel te plaatsen.
Kenmerken
- Volledig naar eigen wens in te richten appartement met een ruime woonkamer, slaapkamer en badkamer;
- Inclusief inpandige berging;
- Inclusief één parkeerplaats;
- Gasloos en energiezuinig;
- Rustig wonen met prachtig uitzicht;
- Centrale ligging in Honselersdijk, met diverse voorzieningen op loopafstand;
- Geschikt voor ouderen of minder validen dankzij de lift;
- Gelegen naast tennisclub TCH Honselersdijk;
- Bijdrage VvE van € 131,- per maand; 
Meer informatie
Voor meer informatie en de laatste updates over dit appartement, bezoek www.honselshaven.nl
                        
                         
                                             
                                             
                                             
                                                 
                                         
                                         
                                         
                                         
                                         
                                         
                                         
                                         
                                         
                                         
                                         
                                         
                                         
                                         
                                         
                                         
                                         
                                         
                                         
                                         
                                         
                                         
                                         
                                         
                                         
                                         
                                         
                                         
                                         
                                         
                                         
                                         
                                         
                                         
                                         
                                         
                                    