Koningin Wilhelminastraat 3

DE LIER

beschikbaar

€ 400.000,- k.k.

Geinteresseerd?

Omschrijving

Charmante hoekwoning met karakter én energiezuinig wonen in het hart van De Lier!

Welkom aan de Koningin Wilhelminastraat 3 – een sfeervolle hoekwoning uit circa 1910, gelegen in een rustige straat midden in het gezellige centrum van De Lier. Deze karakteristieke woning is door de jaren heen zorgvuldig gerenoveerd en gemoderniseerd, waarbij het authentieke gevoel behouden is gebleven. De buitenzijde oogt strak en verzorgd dankzij het nette stucwerk, en binnen treft u een verrassend lichte en ruime leefomgeving.

Met een woonoppervlakte van circa 113 m² op een perceel van ongeveer 80 m² biedt deze woning alle ruimte voor comfortabel wonen. De woning is ideaal voor (jonge) gezinnen of starters, maar ook de ligging is perfect: op loopafstand van het dorpscentrum, scholen, sportfaciliteiten, horecagelegenheden en winkels. Hier woont u rustig, maar met alle voorzieningen binnen handbereik. Dankzij een hoogrendement houtkachel (2024), airconditioning in woonkamer, keuken en grootste slaapkamer en 10 zonnepanelen is het wooncomfort hoog en zijn de energiekosten laag. De airco's worden tevens gebruikt als lucht-lucht warmtepomp ten behoeve van de verwarming. Hierdoor kan het huidige energielabel G na deze voorzieningen aanzienlijk verbeteren.

Mogen wij u binnenkort rondleiden?


Indeling:
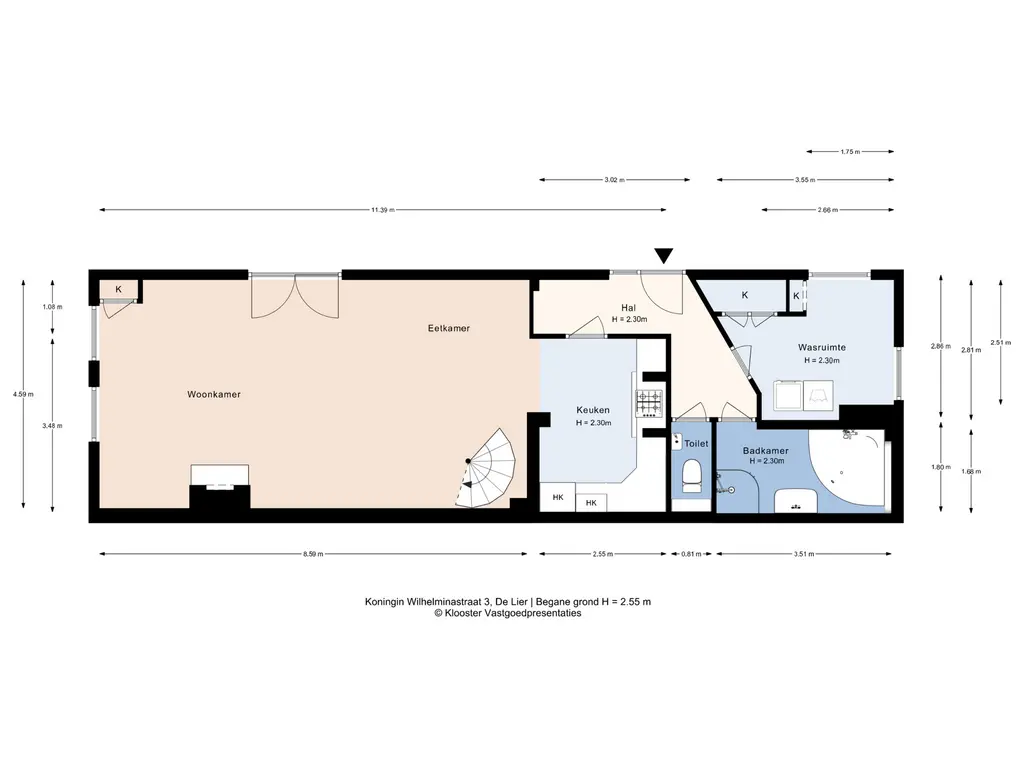
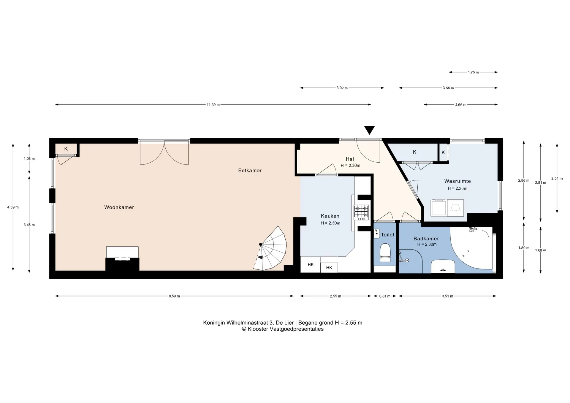
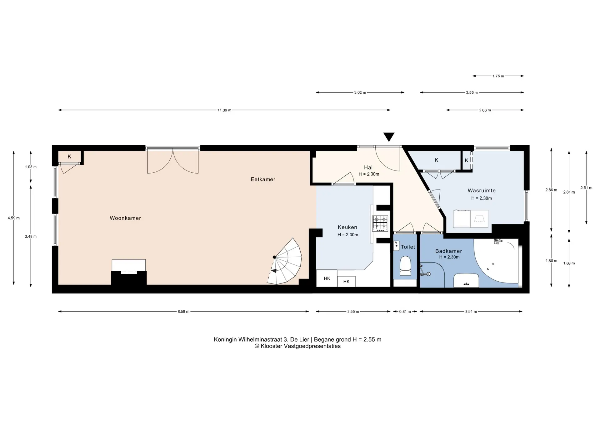
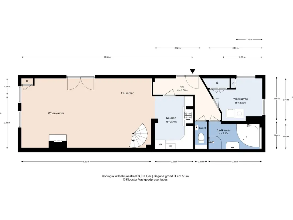
Begane grond:
Bij binnenkomst betreedt u een royale hal die toegang biedt tot diverse vertrekken. Vanuit de hal bereikt u onder andere de wasruimte, de badkamer, het separate toilet met fontein en de leefkeuken, die in open verbinding staat met de woonkamer en eetkamer.

Aan de rechterzijde van de hal bevindt zich de deur naar de keuken. De open keuken is ingericht in een charmante mix van klassieke en moderne stijlelementen en beschikt over diverse inbouwapparatuur. Hoewel het een open keuken betreft, wordt deze subtiel afgescheiden van de woon- en eetkamer door een kleine scheidingswand. Deze wand loopt niet volledig door, maar zorgt voor een optische onderbreking tussen de ruimtes. Achter deze muur bevindt zich de ronde open trap naar de eerste verdieping, die hierdoor vanuit de keuken grotendeels aan het zicht wordt onttrokken.

Via de keuken loopt u door naar de royale woon- en eetkamer. Aan de achterzijde van de ruimte vindt u het zitgedeelte, voorzien van een sfeervolle houtkachel. De eethoek grenst direct aan de keuken, wat zorgt voor een open en gezellige leefruimte.

Wanneer u vanuit de hal naar links gaat, komt u bij de praktische wasruimte. Hier vindt u aansluitingen voor een wasmachine en droger, evenals twee ruime kasten die ideaal zijn voor opslag. Dankzij twee grote ramen aan weerszijden van de ruimte valt er veel daglicht binnen, en is natuurlijke ventilatie tijdens het wassen mogelijk.

Aan de achterzijde van de hal bevinden zich nog twee deuren. De rechterdeur geeft toegang tot het toilet met fontein. De linkerdeur leidt naar de comfortabele badkamer, voorzien van een wastafelmeubel, een afgesloten douchecabine en een royaal ligbad met jacuzzi-functie. Zowel het toilet als de badkamer zijn voorzien van vloerverwarming.

Eerste verdieping:
Via de ronde trap in de woonkamer bereikt u de eerste verdieping, waar u uitkomt op een ruime overloop.
Gaat u vanaf de trap naar rechts, dan komt u direct bij de deur naar het ruime dakterras. Dit langgerekte terras biedt volop mogelijkheden: een fijne plek om samen te komen met vrienden of familie voor een gezellige borrel, of juist een rustige plek om even helemaal tot uzelf te komen.

Gaat u vanaf de overloop naar links, dan heeft u toegang tot drie (slaap)kamers en toiletruimte.
De eerste slaapkamer ligt aan de voorzijde van de woning en beschikt over drie raampartijen, wat zorgt voor een mooie lichtinval en een prettige sfeer. De andere twee kamers bevinden zich aan de zijkant van de woning. Deze ruimtes worden momenteel niet gebruikt als slaapkamer, maar zijn hier zeer zeker geschikt voor.

De linker kamer is momenteel ingericht als inloopkast, ideaal voor kledingopslag of als extra bergruimte.
De rechter kamer is iets ruimer en doet nu dienst als kantoor/werkruimte. Dankzij het grote raam valt hier veel natuurlijk licht binnen, ideaal voor een fijne thuiswerkplek. In deze werkkamer vindt u bovendien twee kleine openslaande deuren die toegang geven tot een zeer praktische berging van ca. 21 m². Deze ruimte is ideaal voor het opbergen van seizoensgebonden spullen of zaken die u niet dagelijks nodig heeft.

Hoewel de badkamer zich op de begane grond bevindt, is het extra comfortabel dat er op deze verdieping ook een separaat toilet met fontein aanwezig is.


Bijzonderheden:
- Authentieke hoekwoning uit circa 1910, volledig gemoderniseerd;
- Ca. 113 m² woonoppervlakte op circa 80 m² perceel;
- Gelegen in het centrum van De Lier, maar toch rustig;
- Lichte, open leefruimte met houtkachel (2024) en airconditioning;
- Open keuken met inbouwapparatuur en sfeervolle afscheiding;
- Royale badkamer voorzien van vloerverwarming, met douche en jacuzzi-ligbad;
- Praktische wasruimte met veel daglicht en bergruimte;
- Drie (slaap)kamers + extra berging van ca. 21 m²;
- Groot dakterras aan de achterzijde;
- Separaat toilet op beide verdiepingen;
- Airconditioning in woonkamer, keuken en grootste slaapkamer;
- 10 zonnepanelen voor lage energiekosten;
- In 2020 vrijwel alle stopcontacten en lichtschakelaars vernieuwd, internetaansluitingen in 2 slaapkamers aangelegd, alle verlichting (spots en overige verlichting) vervangen;
- Ideaal voor starters of jonge gezinnen;
- Oplevering in overleg.
Lees meer

Kenmerken

Overdracht

Vraagprijs
€ 400.000,- k.k.
Status
beschikbaar
Aanvaarding
in overleg

Bouw

Soort woning
woonhuis
Soort woonhuis
eengezinswoning
Type woonhuis
hoekwoning
Aantal woonlagen
2
Bouwvorm
bestaande bouw
Bouwjaar
1910
Huidige bestemming
woonruimte
Onderhoud binnen
goed
Onderhoud buiten
goed
Voorzieningen
airconditioning, jacuzzi, zonnepanelen
Isolatie
dubbel glas

Energie

Energielabel
G
Verwarming
cv ketel, houtkachel
Warm water
cv ketel
C.V.-ketel
gas gestookte combi-ketel uit 2017 van Remeha Avanta, eigendom

Oppervlakten en inhoud

Woonoppervlakte
113 m²
Perceeloppervlakte
80 m²
Inhoud
420 m³
Inpandige ruimte oppervlakte
1 m²
Buitenruimte oppervlakte
12 m²

Indeling

Aantal kamers
4
Aantal slaapkamers
3

Buitenruimte

Ligging
aan rustige weg, in centrum

Garage / Schuur / Berging

Garage
geen garage
Parkeergelegenheid
openbaar parkeren

Plattegronden

Locatie

Downloads

Neem contact met ons op!