Laterastraat 11

NAALDWIJK

verkocht onder voorbehoud

verkocht onder voorbehoud

Geinteresseerd?

Omschrijving

Sfeervolle en duurzame hoekwoning in populaire woonwijk ''Hoogeland''!

In de geliefde wijk ''Hoogeland'' staat deze verrassend ruime en uitstekend onderhouden eengezinswoning (bouwjaar 2012). Dankzij de vele ramen in de zijgevel en de dubbele openslaande deuren aan zowel de voor- als achterzijde is het huis heerlijk licht. In 2020 is de begane grond voorzien van een stijlvolle stenen vloer en een luxe keuken, waardoor de woning direct instapklaar is. Met een inhoud van circa 410 m³, 15 zonnepanelen en een warmtepomp woont u hier bovendien energiezuinig én toekomstbestendig.

De ligging van deze hoekwoning is ideaal: aan de rand van de wijk, op korte loopafstand van het centrum van Naaldwijk. Scholen, speeltuinen, sportverenigingen, het zwembad en openbaar vervoer zijn ruimschoots aanwezig in de nabije omgeving.

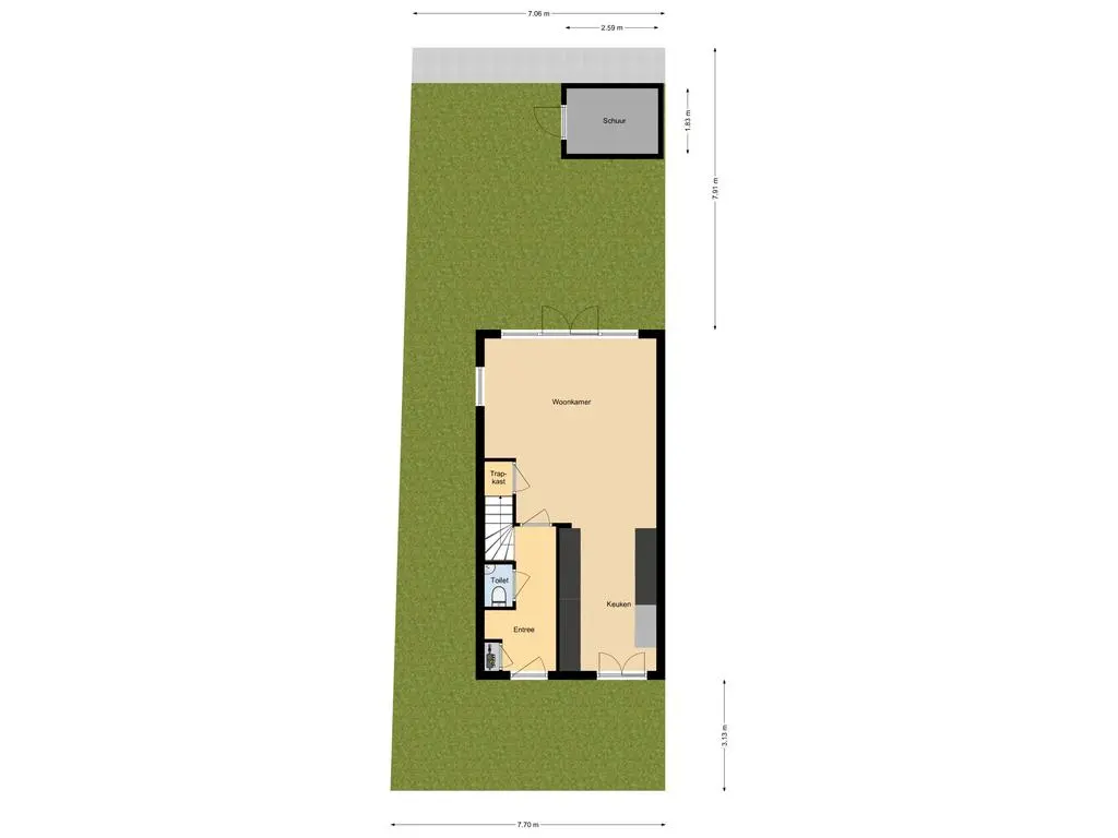
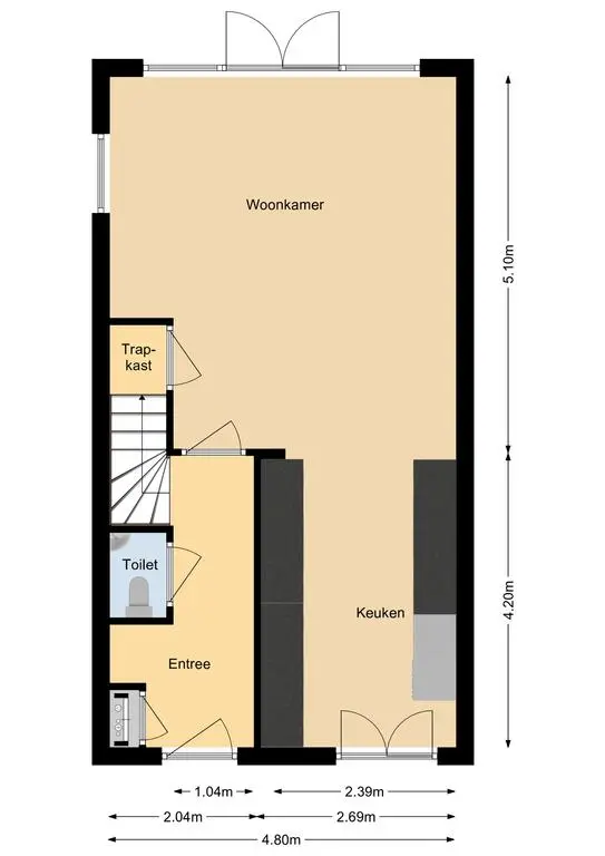
Begane grond:
Via de verzorgde voortuin (ca. 25 m²) bereikt u de entree. In de hal bevinden zich de meterkast, een modern toilet met fonteintje, de trapopgang (voorzien van nieuw tapijt in 2020) en toegang tot de woonkamer. De tuingerichte woonkamer heeft veel lichtinval door de openslaande deuren en het grote zijraam en biedt extra bergruimte via een trapkast. De vloer is in 2020 vernieuwd en uitgevoerd in een natuursteen met houtlook.

De moderne keuken van Verkade Keukens (2020) is uitgevoerd in lichte tinten, opgesteld in twee wanden en voorzien van hoogwaardige Siemens Studioline-apparatuur: een brede 5-pits inductiekookplaat, afzuigkap met directe afvoer, combi-oven, vaatwasser, extra grote koelkast en vriezer. Een Quooker Cube levert niet alleen kokend water, maar ook gekoeld plat en bruisend water. Vanuit de keuken leiden openslaande deuren naar de zonnige voortuin (zuid).
De achtertuin van ca. 50 m² is vrijwel volledig bestraat en onderhoudsvriendelijk ingericht. Dankzij de noordwestligging geniet u hier in de middag en avond van de zon. Achterin bevindt zich een houten berging met elektra en via de zijgevel is er een achterom.

Eerste verdieping:
De overloop geeft toegang tot drie slaapkamers en de badkamer. Aan de voorzijde ligt de grootste slaapkamer (ca. 15 m²) met twee ramen en rolluiken. De badkamer is modern en compleet ingericht met inloopdouche, ligbad, wastafel, toilet, handdoekradiator en mechanische ventilatie. De twee slaapkamers aan de achterzijde (ca. 6 en 8 m²) zijn afgewerkt met laminaat. Alle vertrekken beschikken over instelbare vloerverwarming.

Tweede verdieping:
Via een vaste trap bereikt u de tweede verdieping. Aan de achterzijde is een ruime slaapkamer met kunststof vloer, dakraam met verduistering en bergruimte achter de knieschotten. Met een dakkapel kan deze kamer nog verder worden vergroot. Op de overloop bevindt zich de technische ruimte met de warmtepomp, ventilatie-unit en aansluitingen voor wasmachine en droger. Aan de voorzijde is een royale inloopkast gecreëerd.

Bijzonderheden:
- Hoekwoning op een perceel eigen grond van ca. 154 m2;
- Bouwjaar 2012;
- Energielabel A;
- Volledig geïsoleerd en voorzien van houten kozijnen met HR++ beglazing;
- 15 zonnepanelen;
- De woning wordt verwarmd en gekoeld door middel van restwarmte uit de kas, waardoor er een constante temperatuur is: duurzaam en milieubewust!;
- Woonoppervlakte van ca. 116 m2 (indicatieve meting, conform NEN2580 meetinstructie);
- Begane grond voorzien van openslaande deuren naar de voor- en achtertuin;
- De woning is voorzien van vloerwarming, welke instelbaar is per kamer;
- Voortuin met open uitzicht;
- Achtertuin op het noordwesten. In de achtertuin kunt u genieten van de middag- en avondzon;
- De kosten voor het warmtepompsysteem bedraagt circa € 54,09,- per maand;
- Op loopafstand van het centrum van Naaldwijk en nabij de uitvalswegen van het Westland;
- Royale parkeergelegenheid in de directe nabijheid van de woning;
- Oplevering in overleg.
Lees meer

Kenmerken

Overdracht

Vraagprijs
€ 550.000,- k.k.
Status
verkocht onder voorbehoud
Aanvaarding
in overleg

Bouw

Soort woning
woonhuis
Soort woonhuis
eengezinswoning
Type woonhuis
hoekwoning
Aantal woonlagen
3
Bouwvorm
bestaande bouw
Bouwjaar
2012
Huidige bestemming
woonruimte
Onderhoud binnen
goed
Onderhoud buiten
goed
Voorzieningen
mechanische ventilatie, alarminstallatie, rolluiken, tv kabel, glasvezel kabel, zonnepanelen
Isolatie
volledig geisoleerd, hr glas

Energie

Energielabel
A
Verwarming
vloerverwarming geheel, warmtepomp
Warm water
elektrische boiler eigendom

Oppervlakten en inhoud

Woonoppervlakte
116 m²
Perceeloppervlakte
154 m²
Inhoud
410 m³
Bergruimte oppervlakte
3 m²

Indeling

Aantal kamers
5
Aantal slaapkamers
4

Buitenruimte

Ligging
aan rustige weg, in woonwijk
Tuin
achtertuin met een oppervlakte van 49 m² en is gelegen op het noordwesten

Garage / Schuur / Berging

Garage
geen garage
Parkeergelegenheid
openbaar parkeren
Schuur/berging
vrijstaand hout

Plattegronden

Locatie

Downloads

Neem contact met ons op!