Mellonastraat 13

NAALDWIJK

beschikbaar

€ 325.000,- k.k.

Geinteresseerd?

Omschrijving

In de wijk Hoogeland staat het in 2017 gebouwde appartementencomplex 'Ibiza Plaza'.
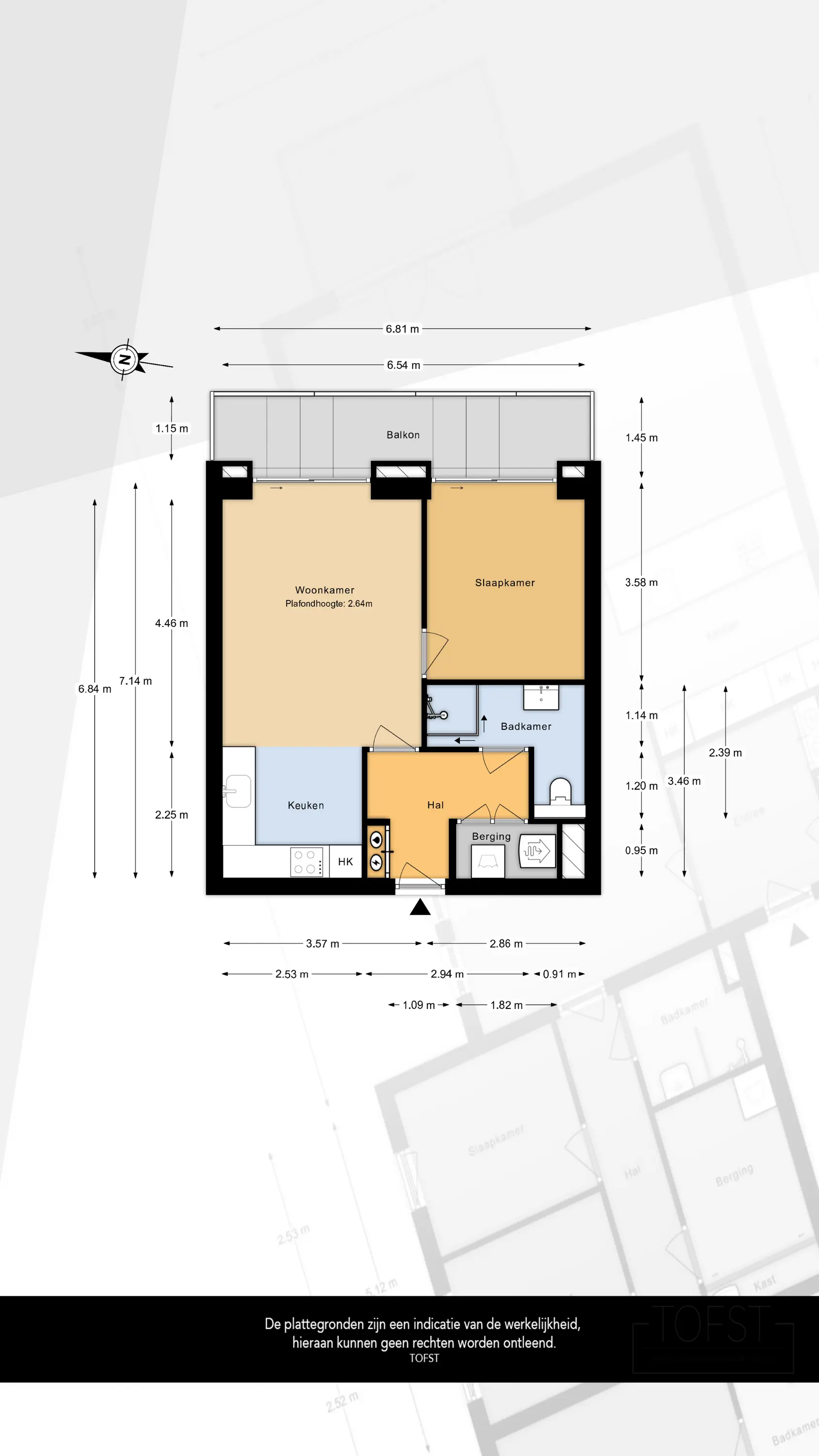
Op de tweede etage ligt dit comfortabele 2-kamer appartement van 46 m², voorzien van energielabel A en een warmtepomp voor vloerverwarming en koeling. Het appartement beschikt over een praktisch ingedeelde woonkamer met balkon, één slaapkamer, moderne badkamer en een verzorgde afwerking.

Het gezellige centrum van Naaldwijk ligt op ongeveer 5 minuten fietsafstand. Ook overige faciliteiten als openbaar vervoer, sportvelden, zwembad en scholen zijn in de directe omgeving te vinden.

Ziet u uzelf wel wonen in dit appartement dat aan alle hedendaagse woonwensen voldoet? Bel ons dan snel om een bezichtiging in te plannen; wij laten u de woning en het bijbehorende uitzicht graag zien!


Appartementencomplex – Begane grond:
Eigen parkeerplaats op het terrein bij het complex. Voorportaal met videofoon en brievenbussen. Afgesloten centrale hal met lift en trapopgang naar de verdiepingen. Inpandige gemeenschappelijke fietsenberging. De deuren zijn automatisch te openen en de vloer is voorzien van vloerbedekking.

Appartement – Tweede verdieping:
Voordeur/entree naar het appartement. Hal met toegang tot de vertrekken. Vaste bergkast met opstelplaats warmtepomp, mechanische ventilatie en wasmachineaansluiting.

De woonkamer kenmerkt zich met een moderne open keuken in L-opstelling. De keuken is voorzien van een kunststof werkblad, spoelbak, inductie kookplaat, vaatwasser, koelkast met vriesvak en combi-oven. De woonkamer biedt middels een schuifpui toegang tot het balkon. Dit balkon is circa 10 m2 en heeft een oostelijke ligging. Vanuit de woonkamer bereikt u de slaapkamer, die eveneens toegang biedt tot het balkon.

Het appartement is grotendeels afgewerkt met een donkere laminaatvloer. In de badkamer ligt een grijze tegelvloer. De volledig betegelde badkamer is uitgerust met een douche, wastafelmeubel, toilet en elektrische designradiator. Het gehele appartement beschikt over comfortabele vloerwarming/-koeling.


Kenmerken:
- Instapklaar 2-kamer appartement nabij het centrum van Naaldwijk;
- Volledig voorzien van isolatieglas, energielabel A;
- Fraai en wijds uitzicht richting verschillende kernen;
- Eigen parkeerplaats op het parkeerterrein bij het appartementencomplex;
- Woning kan zonder directe kosten betrokken worden;
- Balkon bereikbaar via schuifpui vanuit de woonkamer en vanuit de slaapkamer;
- Actieve VVE, met een bijdrage van ca. € 82,- per maand;
- Verwarming/verkoeling middels warmtepomp, huurprijs ca. € 49,- per maand;
- Rookmelders en veiligheidssloten aanwezig;
- Gemeenschappelijke fietsenberging aanwezig in de onderbouw;
- Oplevering in overleg, kan snel (staat leeg).
Lees meer

Kenmerken

Overdracht

Vraagprijs
€ 325.000,- k.k.
Status
beschikbaar
Aanvaarding
in overleg

VvE checklist

Inschrijving KVK
Ja
Jaarlijkse vergadering
Ja
Periodieke bijdrage
Ja (82,00 per maand)
Reservefonds aanwezig
Ja
Onderhoudsplan
Ja
Opstalverzekering
Ja

Bouw

Soort woning
appartement
Soort appartement
portiekflat
Aantal woonlagen
1
Woonlaag
2
Bouwvorm
bestaande bouw
Bouwjaar
2017
Open portiek
nee
Huidige bestemming
woonruimte
Onderhoud binnen
goed
Onderhoud buiten
goed
Voorzieningen
mechanische ventilatie, tv kabel, schuifpui
Isolatie
volledig geisoleerd

Energie

Energielabel
A
Verwarming
vloerverwarming geheel, warmtepomp
Warm water
elektrische boiler eigendom

Oppervlakten en inhoud

Woonoppervlakte
46 m²
Buitenruimte oppervlakte
9 m²

Indeling

Aantal kamers
2
Aantal slaapkamers
1

Buitenruimte

Ligging
in woonwijk, vrij uitzicht

Garage / Schuur / Berging

Garage
geen garage
Parkeergelegenheid
openbaar parkeren, op afgesloten terrein

Plattegronden

Locatie

Downloads

Neem contact met ons op!