Noordkaper 30

NAALDWIJK

verkocht onder voorbehoud

verkocht onder voorbehoud

Geinteresseerd?

Omschrijving

Welkom aan de Noordkaper 30! Een levensloopbestendig appartement met eigen tuin, gesitueerd op het zonnige zuidwesten.

Deze nette benedenwoning is gelegen in een autoluwe straat, op de rand van de populaire wijk Woerdblok.
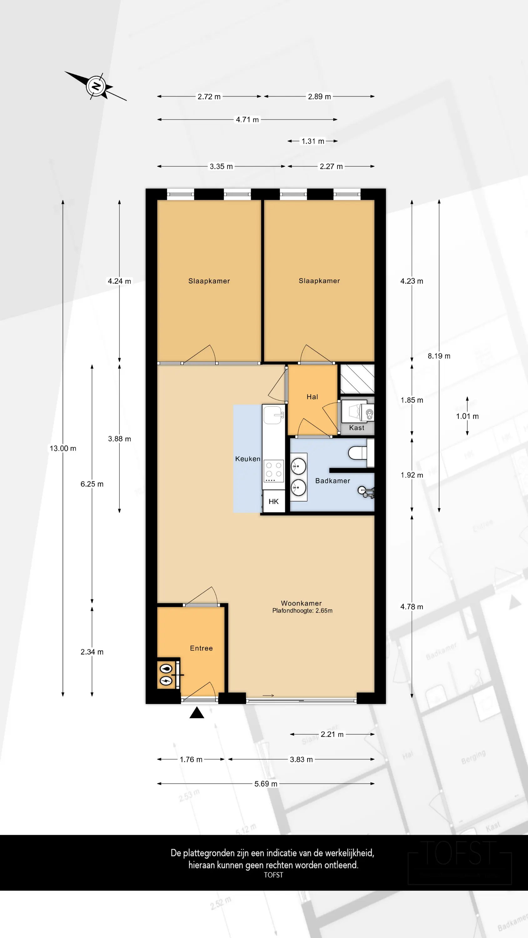
Het appartement beschikt over een woonoppervlakte van circa 73 m² en is praktisch ingedeeld met twee slaapkamers, een ruime woonkamer met open keuken en een moderne badkamer.

Aan de voorzijde bevindt zich een fijne voortuin op het zuidwesten, waar je heerlijk de dag rond van de zon kunt genieten.
Het appartement is vanuit de bouw (2009) volledig geïsoleerd en voorzien van HR++ beglazing. Het object beschikt over een energielabel A, wat bijdraagt aan comfortabel en energiezuinig wonen.

De ligging is ideaal: op loop- en fietsafstand vind je diverse voorzieningen zoals scholen, sportverenigingen en het Prinsenbos. Daarnaast ligt het centrum van Naaldwijk op slechts 5 minuten fietsen, met een ruim aanbod aan winkels, horecagelegenheden en overige voorzieningen.

Bent u geïnteresseerd na het zien van de foto's, twijfel niet en neem contact met ons op om uw persoonlijke bezichtiging in te plannen!

Indeling:
Via de entree aan de Noordkaper 30 betreedt u het appartement. Vanuit de hal heeft u toegang tot de meterkast en de woonkamer. De woonkamer heeft een prettige indeling, waarbij de zithoek zich aan de voorzijde van het appartement bevindt. Deze grenst direct aan een grote glazen schuifpui met toegang tot de voortuin op het zuidwesten, wat zorgt voor een mooie natuurlijke lichtinval gedurende de dag.
In januari 2025 is de houten vloer geschuurd, zijn de wanden en plafonds gestuukt en is de aanwezige vloerbedekking vernieuwd. Hierdoor kunt u nu zonder grote aanpassingen direct over naar dit fijne plekje.

Aan de achterzijde van de woonkamer bevindt zich de eethoek, die in open verbinding staat met de keuken. De open keuken is uitgerust met diverse inbouwapparatuur, waaronder een inductiekookplaat, afzuiginstallatie, oven, koelkast met vriesvak en vaatwasser.

De eerste (slaap)kamer is eveneens gelegen aan de achterzijde van de woning en beschikt over een glazen wand en deur met zicht op de eethoek en keuken. Dankzij de aanwezige raampartij en prettige lichtinval is deze ruimte uitstekend geschikt als slaapkamer, werkkamer of hobbyruimte. Momenteel wordt de kamer gebruikt als inloopkast en kleedruimte.

Naast de keuken bevindt zich een deur naar de hal, welke toegang biedt tot de hoofdslaapkamer, badkamer en wasruimte.
De hoofdslaapkamer ligt aan de achterzijde van de woning en beschikt over twee ramen, wat zorgt voor voldoende daglicht. Een wand is afgewerkt met een bruin-grijzig behang, wat de kamer een warme en sfeervolle uitstraling geeft.

De badkamer (januari, 2025) is modern uitgevoerd en voorzien van een toilet, een dubbel wastafelmeubel en een inloopdouche met thermostaatkraan, regendouche en aparte handdouche. De combinatie van warm grijs-beige tegelwerk en een wastafelmeubel met houtlook geeft de badkamer een eigentijdse en luxe uitstraling. De badkamer wordt verwarmd middels een radiator. Daarbij zal de retourleiding in de vloer het hier 's-winters nog iets behaaglijker maken.


Bijzonderheden:
- Benedenwoning gelegen in een autoluwe straat, op de rand van de populaire wijk Woerdblok
- Woonoppervlakte ca. 73 m²
- Energielabel A
- Twee slaapkamers, waaronder een multifunctionele kamer (slaap-/werk-/hobbykamer)
- Ruime woonkamer met veel natuurlijke lichtinval
- Grote glazen schuifpui met toegang tot de voortuin
- Voortuin aan de voorzijde, gelegen op het zuidwesten
- Open keuken in verbinding met de eethoek
- Open keuken voorzien van inbouwapparatuur: inductiekookplaat, afzuiginstallatie, oven, koelkast en vaatwasser
- Hoofdslaapkamer aan de achterzijde met twee ramen en een warme, sfeervolle afwerking
- Moderne badkamer met luxe uitstraling
- Badkamer (januari, 2025) voorzien van toilet, dubbel wastafelmeubel met houtlook en inloopdouche met thermostaatkraan, regendouche en handdouche
- Separate wasruimte
- Centrum van Naaldwijk op circa 5 minuten fietsen
- Scholen, sportverenigingen, supermarkten en overige voorzieningen op loop- en fietsafstand
- Actieve VvE met een maandelijkse bijdrage van € 136,49
- Oplevering in overleg, medio eind april 2026
Lees meer

Kenmerken

Overdracht

Vraagprijs
€ 450.000,- k.k.
Status
verkocht onder voorbehoud
Aanvaarding
in overleg

VvE checklist

Inschrijving KVK
Ja
Jaarlijkse vergadering
Ja
Periodieke bijdrage
Ja (136,49 per maand)
Reservefonds aanwezig
Ja
Onderhoudsplan
Ja
Opstalverzekering
Ja

Bouw

Soort woning
appartement
Soort appartement
benedenwoning
Aantal woonlagen
1
Woonlaag
1
Bouwvorm
bestaande bouw
Bouwjaar
2009
Open portiek
nee
Huidige bestemming
woonruimte
Onderhoud binnen
goed
Onderhoud buiten
goed
Voorzieningen
mechanische ventilatie, tv kabel, buitenzonwering, glasvezel kabel
Isolatie
volledig geisoleerd

Energie

Energielabel
A
Verwarming
cv ketel
Warm water
cv ketel
C.V.-ketel
gas gestookte combi-ketel uit 2025 van Remeha Avanta, eigendom

Oppervlakten en inhoud

Woonoppervlakte
73 m²
Bergruimte oppervlakte
3 m²

Indeling

Aantal kamers
3
Aantal slaapkamers
2

Buitenruimte

Ligging
aan rustige weg, in woonwijk
Tuin
voortuin met een oppervlakte van 23 m² en is gelegen op het zuidwesten

Garage / Schuur / Berging

Garage
geen garage
Parkeergelegenheid
openbaar parkeren
Schuur/berging
inpandig

Plattegronden

Locatie

Downloads

Neem contact met ons op!