Portalaan 34

NAALDWIJK

beschikbaar

€ 600.000,- k.k.

Geinteresseerd?

Omschrijving

Duurzaam, modern en volledig instapklaar wonen in de geliefde wijk Hoogeland!

Deze instapklare eengezinswoning met zonnige achtertuin beschikt over een woonoppervlakte van circa 130 m².
De woning biedt een ruime en lichte woonkamer, drie volwaardige slaapkamers, een multifunctionele tweede verdieping en een zonnige tuin op het zuiden. Portalaan 34 is zeer energiezuinig met energielabel A en uitgerust met maar liefst 11 zonnepanelen, HR++ beglazing, een warmtepomp en een 200 liter boilervat.

Alle woonlagen worden volledig verwarmd en gekoeld middels het leidingwerk in de vloeren. Hier zit je 's-zomers heerlijk koel, terwijl het buiten warm is!

De woning is centraal gelegen in de geliefde wijk Hoogeland. Deze wijk ligt op korte fietsafstand van het centrum van Naaldwijk en biedt diverse voorzieningen in de directe omgeving, zoals scholen, sportverenigingen, zwembad, winkels, supermarkten en horecagelegenheden.

Heeft u na het bekijken van de foto’s interesse in deze instapklare woning? Aarzel dan niet en neem contact met ons op voordat deze woning verkocht is.

Indeling:
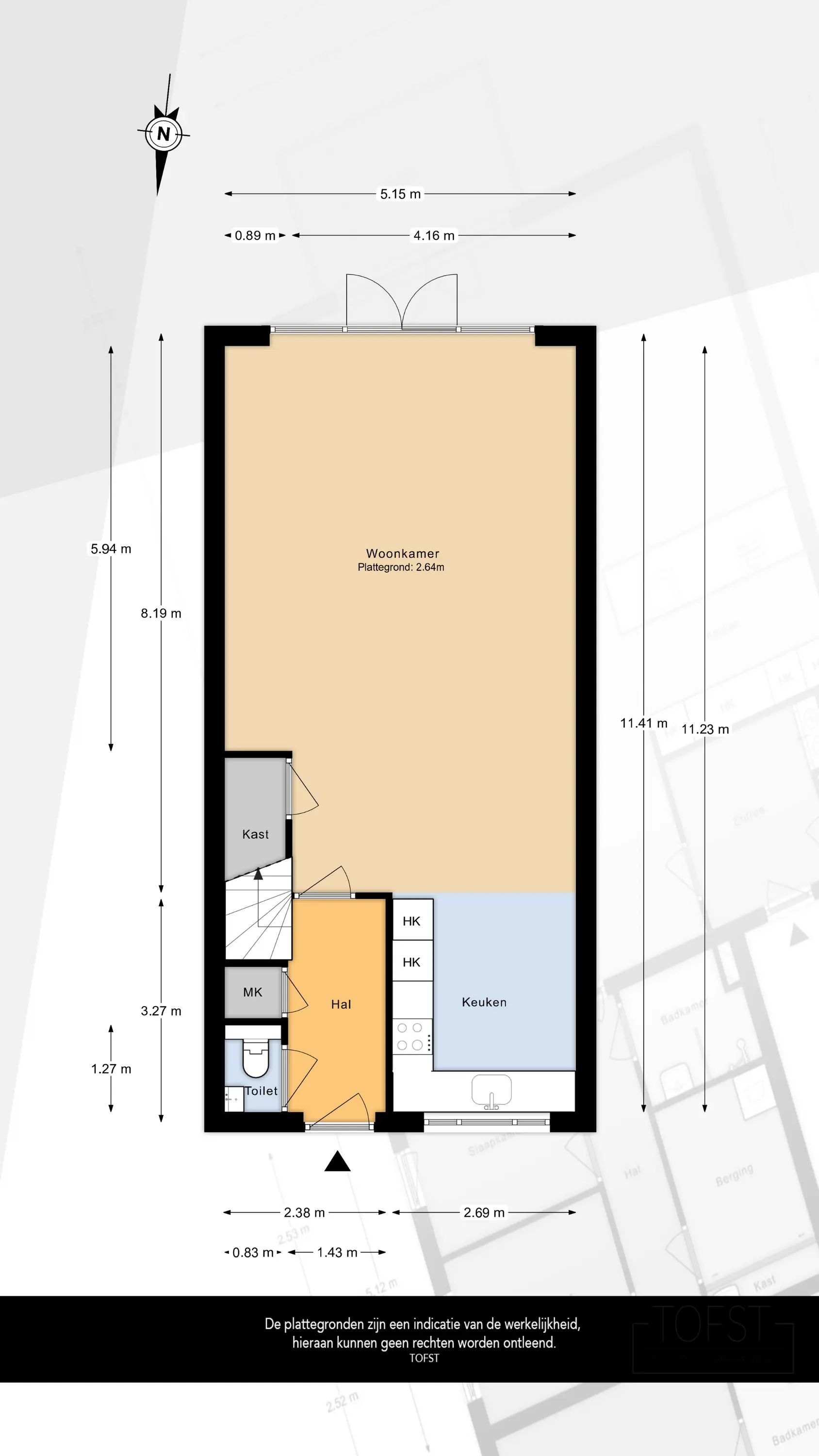
Begane grond:
Aan de Portalaan betreedt u de entree van de woning, die toegang biedt tot het toilet, de meterkast, de trap naar de eerste verdieping en de woonkamer.

De ruime woonkamer is voorzien van een pvc-vloer en kenmerkt zich door een prettige lichtinval dankzij de glazen pui aan de achterzijde met openslaande deuren naar de tuin. Daarnaast beschikt de woonkamer over een praktische trapkast. Aan de achterzijde bevindt zich de eethoek, die grenst aan de open keuken.

De moderne keuken heeft een strakke uitstraling dankzij de witte fronten in combinatie met een zwart werkblad in stenenuitstraling. De keuken is uitgerust met diverse inbouwapparatuur, waaronder een oven, vaatwasser, koelkast, vriezer, inductiekookplaat en een afzuiginstallatie.

De zonnige tuin heeft een oppervlakte van circa 38 m² en is gelegen op het zuiden. De tuin biedt volop mogelijkheden om meerdere zitplekken naar eigen wens te creëren. Tevens is er een houten berging, ideaal voor het opbergen van bijvoorbeeld fietsen en tuingereedschap, en beschikt de tuin over een achterom.

Eerste verdieping:
Op de eerste verdieping bevindt zich de overloop met toegang tot drie slaapkamers, de badkamer en de trap naar de tweede verdieping.

De hoofdslaapkamer is gelegen aan de achterzijde van de woning en beschikt over een ruime raampartij die zorgt voor veel natuurlijk licht. Daarnaast is deze kamer voorzien van een ingebouwde kastenwand, wat zorgt voor voldoende opbergruimte.

De tweede slaapkamer, eveneens gelegen aan de achterzijde, wordt momenteel gebruikt als kinderkamer en heeft een raampartij met prettige lichtinval.
De derde slaapkamer bevindt zich aan de voorzijde van de woning en is momenteel in gebruik als kantoor/werkruimte. Dankzij de grote raampartij is deze kamer heerlijk licht en bovendien ruim genoeg om te dienen als volwaardige slaapkamer.

De badkamer, eveneens gelegen aan de voorzijde van de woning, is uitgerust met een ligbad, douche, toilet en een dubbel wastafelmeubel. De badkamer heeft een strakke en moderne uitstraling, mede door de witte wandtegels in combinatie met bruinaccenten op de wand en vloer.

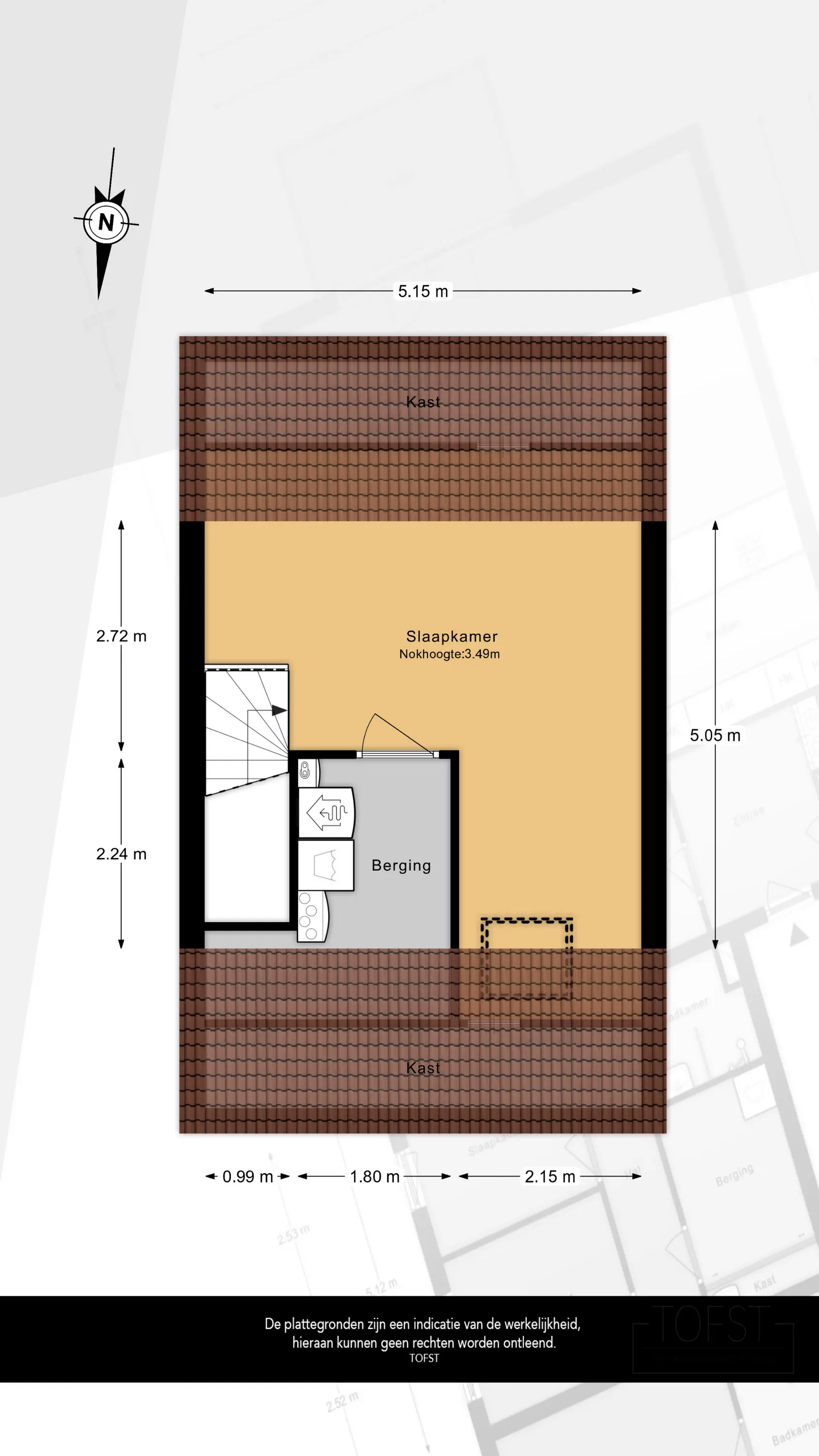
Tweede verdieping:
De tweede verdieping is een ruime en multifunctionele ruimte en beschikt over een groot dakraam dat zorgt voor veel natuurlijke lichtinval. Op deze verdieping bevindt zich tevens een afgesloten berging, welke momenteel in gebruik is als wasruimte met aansluitingen voor de wasmachine en droger.

De verdieping wordt op dit moment gebruikt als sportruimte, maar kan eenvoudig worden ingericht als een volwaardige extra slaapkamer, werkruimte of hobbykamer, wat deze woning extra flexibel maakt.

Bijzonderheden:
- Instapklare, moderne eengezinswoning in de geliefde wijk Hoogeland;
- Woonoppervlakte circa 130 m²;
- Drie volwaardige slaapkamers op de eerste verdieping met tevens een multifunctionele tweede verdieping;
- Ruime en lichte woonkamer met pvc-vloer, trapkast en glazen pui met openslaande deuren naar de tuin;
- Moderne open keuken met witte fronten, zwart werkblad en complete inbouwapparatuur;
- Zonnige tuin van circa 38 m², gelegen op het zuiden, met houten berging en achterom;
- Badkamer met moderne uitstraling, voorzien van ligbad, douche, toilet en dubbel wastafelmeubel;
- Hoofdslaapkamer aan de achterzijde met ingebouwde kastenwand;
- Energiezuinige woning met energielabel A;
- Voorzien van 11 zonnepanelen, warmtepomp, 200 liter boiler en HR++ beglazing;
- Volledig voorzien van vloerverwarming en vloerkoeling op alle woonlagen;
- Tweede verdieping met groot dakraam en afgesloten wasruimte met aansluitingen voor wasmachine en droger;
- Gelegen op korte fietsafstand van het centrum van Naaldwijk;
- Diverse voorzieningen in de directe omgeving van de woonwijk, waaronder scholen, sportverenigingen, zwembad, winkels, supermarkten en horecagelegenheden;
- Oplevering in overleg.
Lees meer

Kenmerken

Overdracht

Vraagprijs
€ 600.000,- k.k.
Status
beschikbaar
Aanvaarding
in overleg

Bouw

Soort woning
woonhuis
Soort woonhuis
eengezinswoning
Type woonhuis
tussenwoning
Aantal woonlagen
3
Bouwvorm
bestaande bouw
Bouwjaar
2017
Huidige bestemming
woonruimte
Onderhoud binnen
goed
Onderhoud buiten
goed
Voorzieningen
mechanische ventilatie, alarminstallatie, buitenzonwering, zonnepanelen
Isolatie
volledig geisoleerd

Energie

Energielabel
A
Verwarming
vloerverwarming geheel, warmtepomp

Oppervlakten en inhoud

Woonoppervlakte
130 m²
Perceeloppervlakte
119 m²
Inhoud
469 m³
Bergruimte oppervlakte
7 m²

Indeling

Aantal kamers
5
Aantal slaapkamers
4

Buitenruimte

Ligging
aan rustige weg, in woonwijk
Tuin
achtertuin met een oppervlakte van 38 m² en is gelegen op het zuiden

Garage / Schuur / Berging

Garage
geen garage
Parkeergelegenheid
openbaar parkeren
Schuur/berging
vrijstaand hout

Plattegronden

Locatie

Downloads

Neem contact met ons op!