Prof. van Arkelstraat 21

'S-GRAVENZANDE

beschikbaar

€ 389.000,- k.k.

Geinteresseerd?

Omschrijving

Klassieke eengezinswoning met drie slaapkamers en zonnige tuin op het zuiden, op loopafstand van het centrum van ’s-Gravenzande!

De woning beschikt over een ruime woonkamer, met een degelijke, robuuste uitstraling dankzij de sierbalken, de erker aan de voorzijde, hardhouten kozijnen en binnendeuren met glas-in-lood ramen.

Deze charmante eengezinswoning biedt een woonoppervlakte van ca. 88 m² op een perceel van 96 m².
Daarnaast zijn er diverse openbare parkeermogelijkheden rondom de woning en ligt deze in een rustige, autoluwe straat.

De woning is gelegen op loopafstand van het centrum van ’s-Gravenzande, met in de directe omgeving tal van voorzieningen zoals supermarkten, scholen, sportverenigingen, winkels en gezellige horecagelegenheden op het Marktplein.

Wat deze woning uniek maakt, is de authentieke uitstraling in combinatie met de mogelijkheden om de ruimtes geheel naar eigen smaak in te richten. Professor van Arkelstraat 21 heeft een prachtige basis om je eigen thuis te creëren!
Mogen wij u rondleiden?

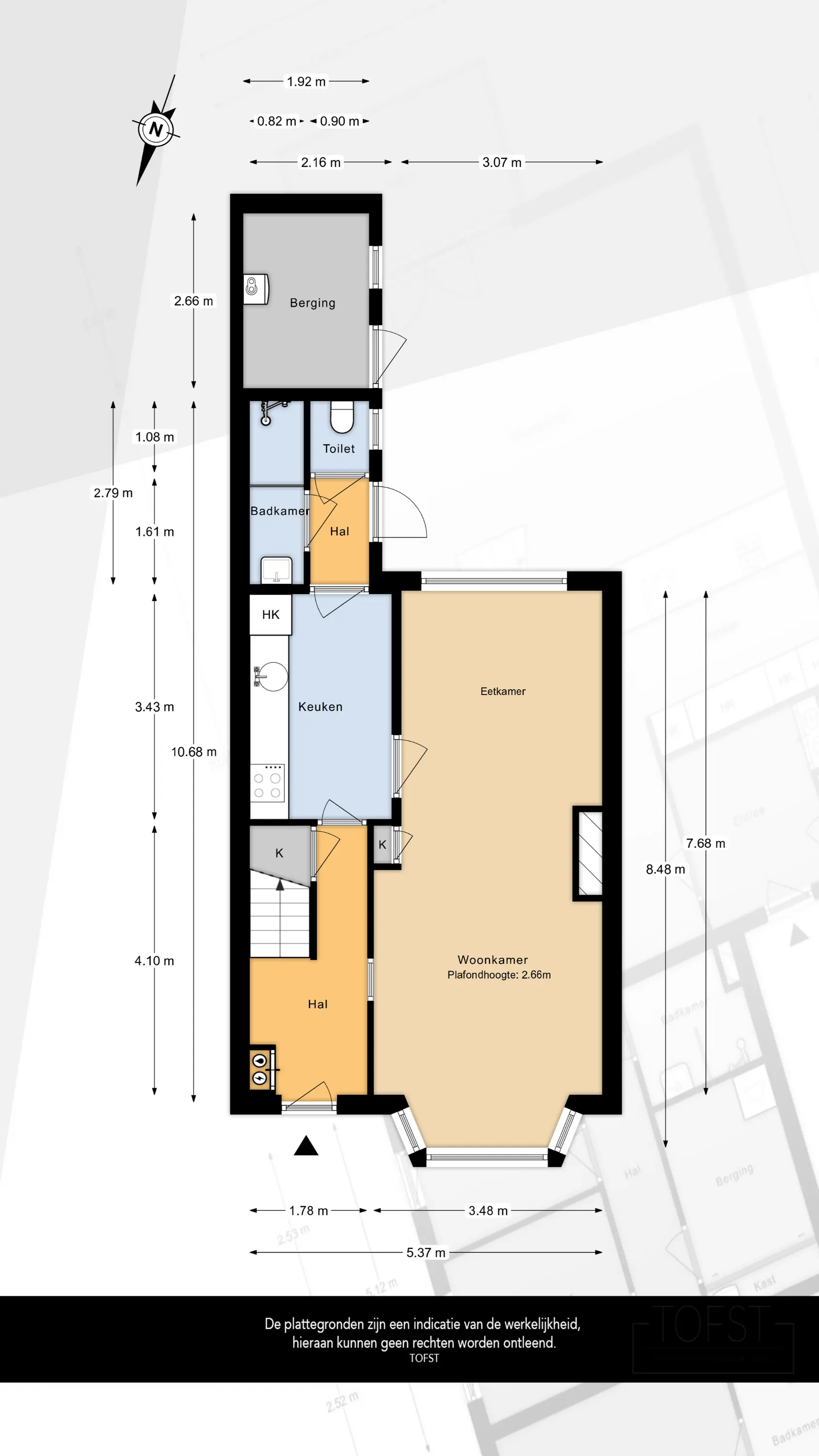
Indeling:
Begane grond:
Gezellige straat, voortuin met straatwerk en gemetselde erfafscheiding met ambachtelijk sier hekwerk.
Hardhouten voordeur naast erker in hal met meterkast, garderobe, trapopgang, trapkast, keuken aan de achterzijde met toegang tot de woonkamer.

De woonkamer heeft aan de voorzijde een erker, die zorgt voor een levendig uitzicht en extra lichtinval. Aan de zijkant bevindt zich een karakteristieke, stenen muur en een sfeervolle haard. De begane grond is voorzien van plavuizen met vloerverwarming. Aan de achterzijde bevindt zich de eethoek met een groot raam dat uitzicht biedt op de tuin.

De separate keuken is zowel via de hal als via de woonkamer bereikbaar. Wandopstelling met houten fronten en diverse inbouwapparatuur, waaronder een inductiekookplaat met afzuigkap, koelkast, vriezer, combi-oven en opstelplaats voor de wasmachine.

Achter de keuken bereikt u de bijkeuken, met toegang tot het toilet, de badkamer en de tuin.

De badkamer heeft een tijdloze uitstraling en is voorzien van een wastafel en een douche. De wanden zijn betegeld met witte en crèmekleurige tegels, waarbij sommige tegels zijn voorzien van een subtiele print.

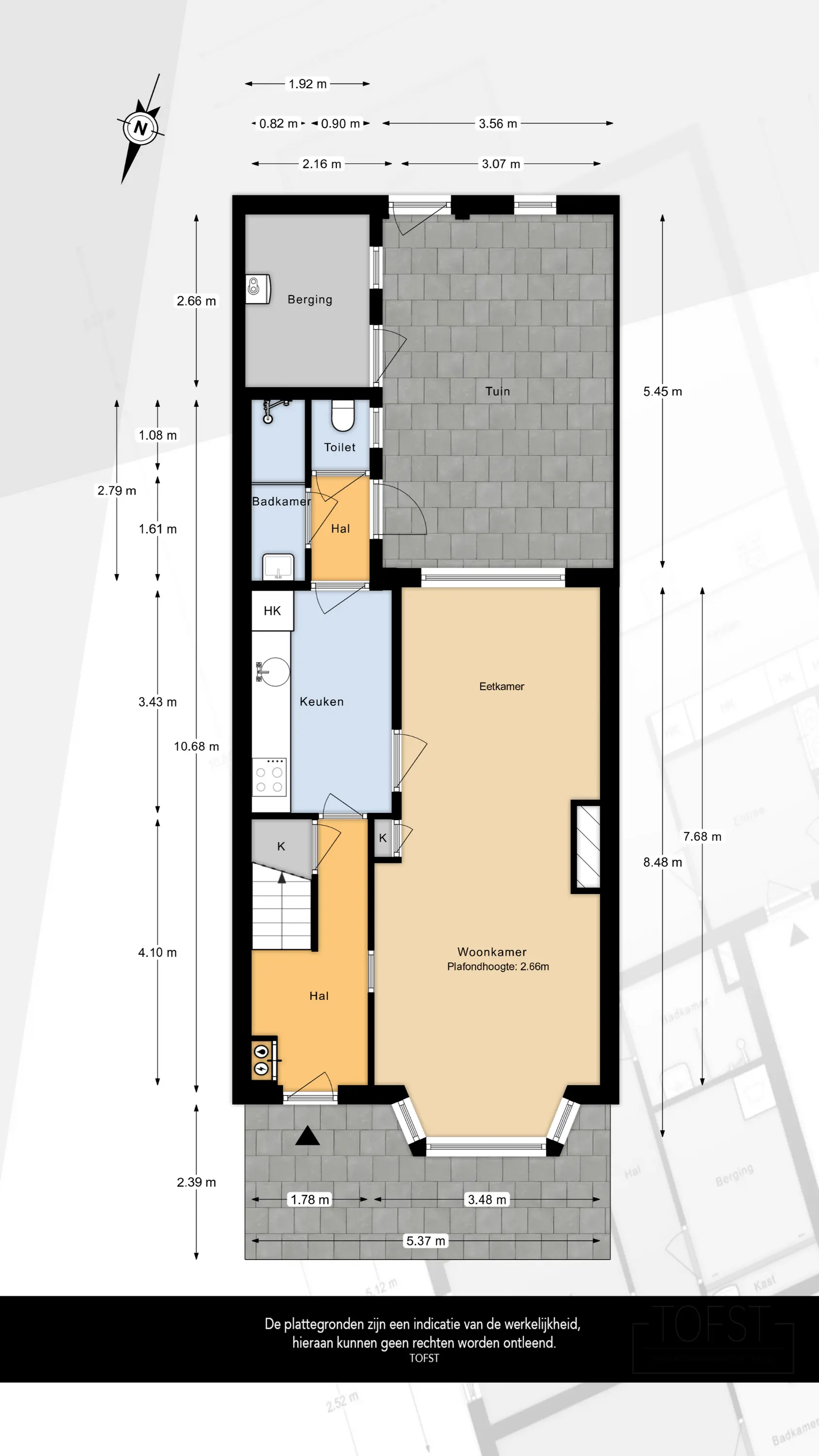
De tuin ligt op het zuiden, waardoor u de hele dag van de zon kunt genieten en eenvoudig meerdere zitplekken kunt creëren. Er is een aangebouwde stenen berging, voorzien van elektra, ideaal voor opslag of het stallen van fietsen. Via de achterom kunt u gemakkelijk met de fiets de tuin bereiken.


Eerste verdieping:
De overloop biedt toegang tot drie slaapkamers: twee aan de achterzijde en één aan de voorzijde van de woning. Daarnaast zijn er twee praktische vaste kasten aanwezig op de overloop.

De twee slaapkamers aan de achterzijde hebben beide een ingebouwde opbergkast onder het raam. Eén van deze kamers is daarnaast voorzien van een ingebouwde kastenwand met schuifdeuren aan de zijkant, met inbouwspots.

De gehele verdieping is afgewerkt met een nette laminaatvloer.


Bijzonderheden:
- Authentieke, karakteristieke uitstraling met stenen muur en sfeervolle open haard;
- Woonkamer met erker voor extra lichtinval en charme;
- Begane grond voorzien van vloerverwarming;
- Zonnige tuin op het zuiden met meerdere zitmogelijkheden;
- Aangebouwde stenen berging met achterom, ideaal voor fietsen;
- Drie slaapkamers, waarvan één met ingebouwde kastenwand en inbouwspots;
- Gelegen in een rustige, autoluwe straat;
- Loopafstand van het centrum van ’s-Gravenzande en alle voorzieningen;
- Diverse mogelijkheden om de woning te moderniseren of juist het karakter te behouden;
- De woning zal worden verkocht volgens het 'as is, where is' principe;
- Oplevering in overleg.
Lees meer

Kenmerken

Overdracht

Vraagprijs
€ 389.000,- k.k.
Status
beschikbaar
Aanvaarding
in overleg

Bouw

Soort woning
woonhuis
Soort woonhuis
eengezinswoning
Type woonhuis
tussenwoning
Aantal woonlagen
2
Bouwvorm
bestaande bouw
Bouwjaar
1936
Huidige bestemming
woonruimte
Onderhoud binnen
redelijk_tot_goed
Onderhoud buiten
goed
Voorzieningen
glasvezel kabel
Isolatie
volledig geisoleerd

Energie

Energielabel
E
Verwarming
cv ketel, vloerverwarming gedeeltelijk
Warm water
cv ketel
C.V.-ketel
gas gestookte cv-ketel uit 2002, eigendom

Oppervlakten en inhoud

Woonoppervlakte
88 m²
Perceeloppervlakte
96 m²
Inhoud
304 m³
Inpandige ruimte oppervlakte
5 m²

Indeling

Aantal kamers
4
Aantal slaapkamers
3

Buitenruimte

Ligging
aan rustige weg
Tuin
achtertuin met een oppervlakte van 19 m² en is gelegen op het zuiden

Garage / Schuur / Berging

Garage
geen garage
Parkeergelegenheid
openbaar parkeren
Schuur/berging
aangebouwd steen

Plattegronden

Locatie

Downloads

Neem contact met ons op!