Instapklaar met een hoofdletter I! Dat is deze goed onderhouden tussenwoning aan Rembrandtstraat 6 te Monster absoluut te noemen! 
De tussenwoning beschikt over 3 ruime slaapkamers, een heerlijke tuin (ZW) met veranda en hoogwaardige afwerking op elke verdieping.  
Op zeer korte afstand zijn de duinen en het strand van Monster te bereiken. 
 
Rembrandtstraat 6 ligt in een rustige, kindvriendelijke woonwijk in Monster, op loopafstand van het dorpscentrum en diverse voorzieningen zoals diverse basisscholen, winkels en een supermarkt. De buurt kenmerkt zich door een gemoedelijke sfeer met relatief veel gezinnen. De woning bevindt zich in een straat met voornamelijk eengezinswoningen uit de jaren ’50, wat zorgt voor een charmante en vertrouwde uitstraling. Dankzij de nabijheid van uitvalswegen is de locatie ook goed bereikbaar met de auto. 
 
Wilt u de sfeer van deze fraaie gezinswoning met sfeervolle afwerking met eigen ogen zien? Neem contact met ons op voor het inplannen van een bezichtiging! 
 
Indeling: 
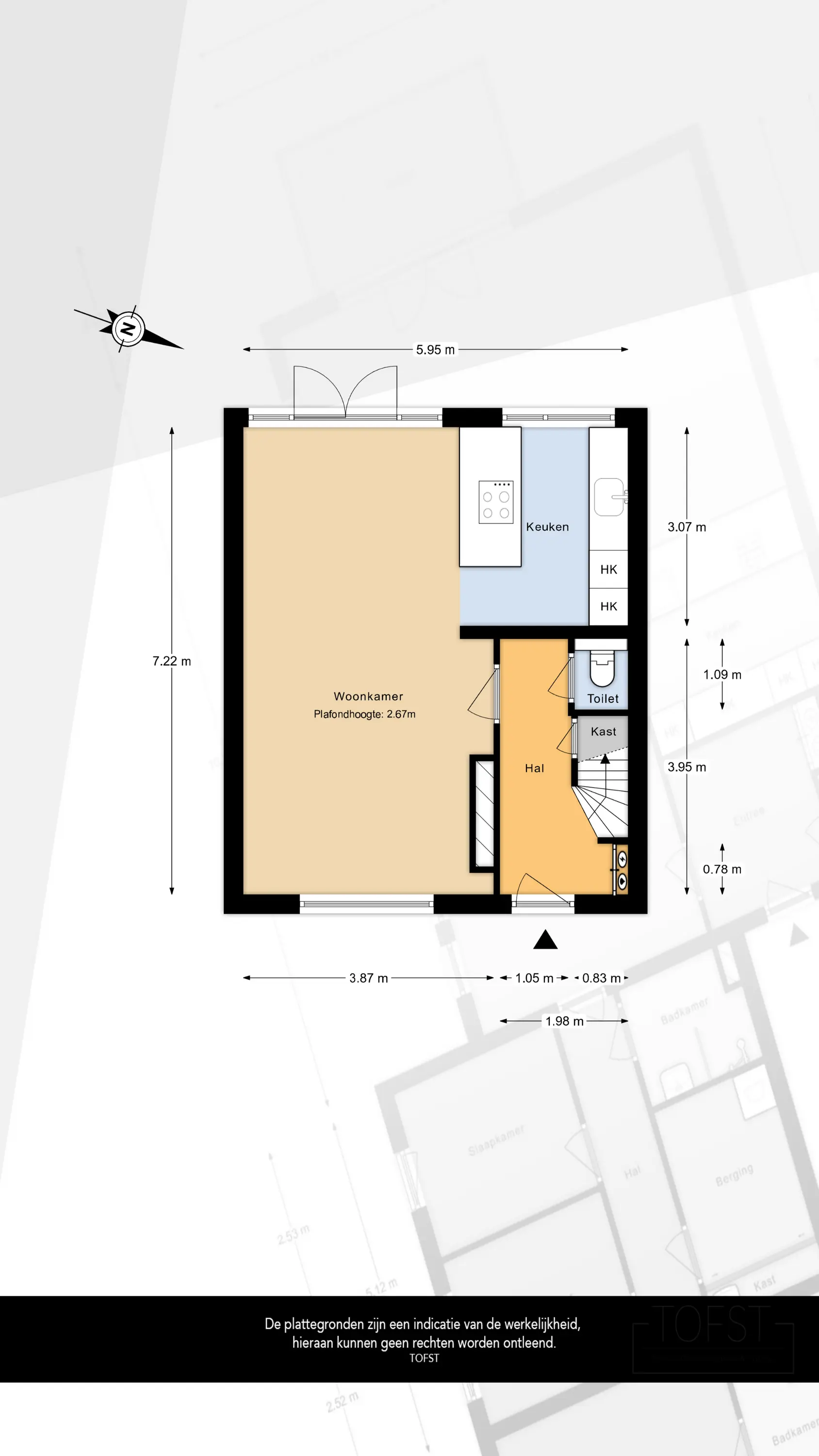
Begane grond 
Grotendeels bestrate voortuin (2024) met stenen plantenbakken, afgewerkt met houten latjes, voorzien van beplanting. Boven het raam aan de voorzijde van de woning is een prachtige antracietkleurige markies geplaatst, wat zorgt voor een luxe uitstraling van de woning. Entree onder overkapping in langgerekte hal met toiletruimte, vaste trapopgang, meterkast en toegangsdeur naar de woonkamer. Hier valt direct de hoogwaardige afwerking op; strak gestuukte wanden en plafonds met lichtspots, een visgraat vloer (parket) en op maat gemaakte jaloezieën voor de raampartijen aan voor- en achterzijde.  
Aan de voorzijde een ruime zithoek, aan de tuinzijde de moderne open keuken en eethoek met uitzicht op de keurig verzorgde achtertuin. 
 
In de open keuken, voorzien van wandopstelling en separaat kookeiland, is eveneens aan alles gedacht. De inductiekookplaat met geïntegreerde afzuiging is verwerkt in een ruim keukenblad, waaronder diverse opbergruimte in kasten en lades. Naast de combi-oven, koel-vriescombinatie en vaatwasser. Daarnaast beschikt de keuken ook over een waterkraan, met niet alleen kokend water, maar ook koud water (4 graden) en bruisend water (ter overname).
 
De zonnige achtertuin, gesitueerd op het zuidwesten, kan zo in een brochure. De diverse terrastegels en stenen plantenbakken zorgen voor een Mediterraanse uitstraling, in de houten veranda centraal in de tuin zit u heerlijk beschut, perfect voor zwoele zomeravonden.  
Zeer praktisch is de riante, stenen schuur achterin de tuin, de achterom en de elektrisch bedienbare zonwering aan de gevel. De pizza steenoven en het stenen fonteintje maken de tuin helemaal af! 
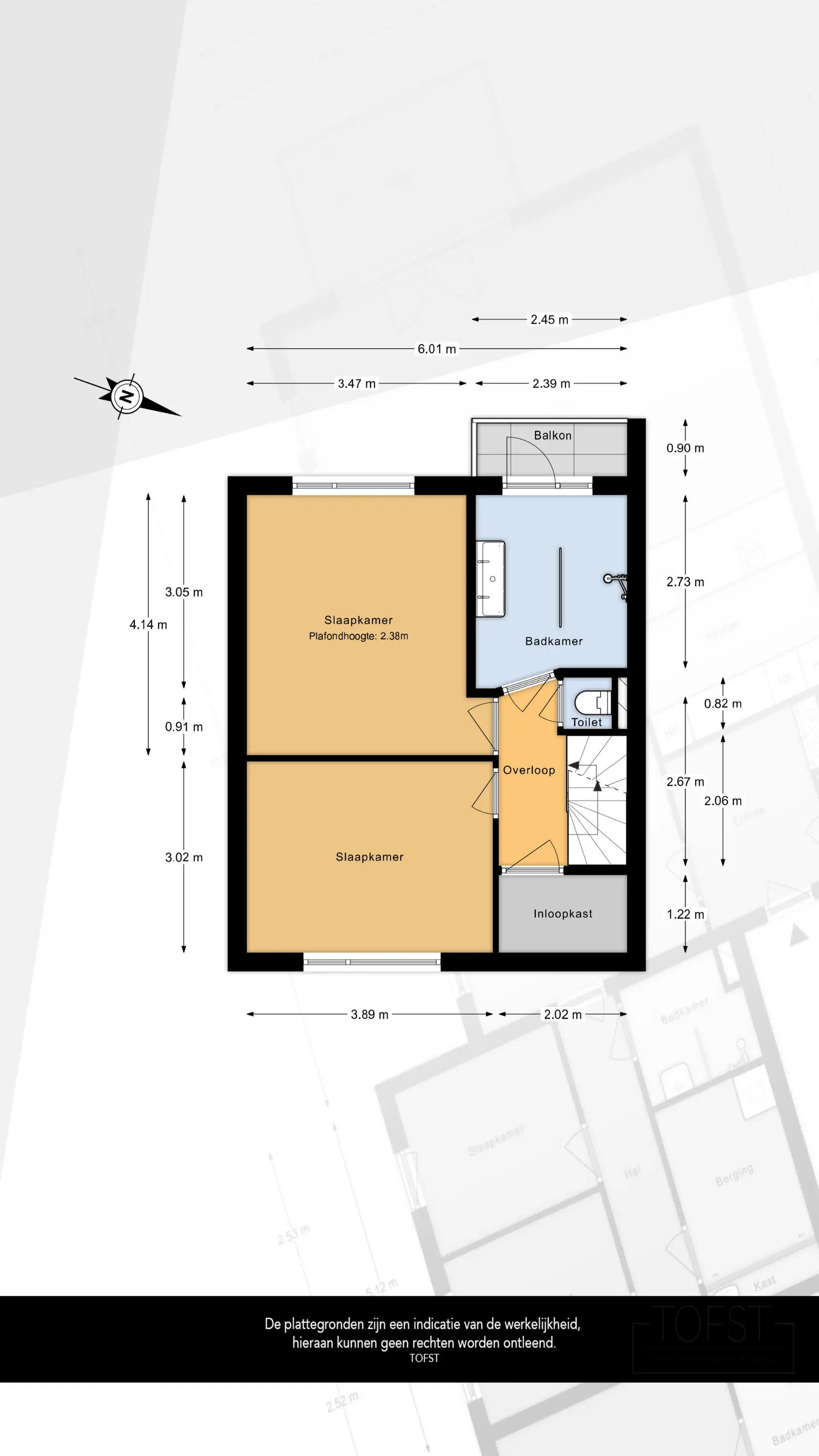
Eerste verdieping 
Overloop met toegang tot twee royale (slaap-)kamers, een badkamer met balkon, separate toiletruimte en luxe inloopkast. 
Ook op deze verdieping worden de ruimte gekenmerkt door een strakke afwerking, waarin gebruik is gemaakt van sfeervolle en luxe details. Beide kamers beschikken over op maat gemaakte jaloezieën, elektrische rolluiken en radiator ombouw. De hoofdslaapkamer is voorzien van tv-aansluiting  
 
De volledig betegelde badkamer, waarin brons kleurige tegels zijn afgewisseld met crèmekleurige, heeft de uitstraling en inrichting van een thuis-spa. In de ruime inloopdouche zijn zowel regen- als handdouche aanwezig, het wastafelmeubel heeft een dubbele kraan en er is extra opbergruimte in twee kolomkasten. Via een loopdeur is niet alleen het balkon toegankelijk, deze zorgt ook voor frisse lucht in de badkamer, de designradiator voor verwarming.  
 
Zowel luxe als praktisch is de inloopkast op deze verdieping, ingericht met diverse pax kasten.  
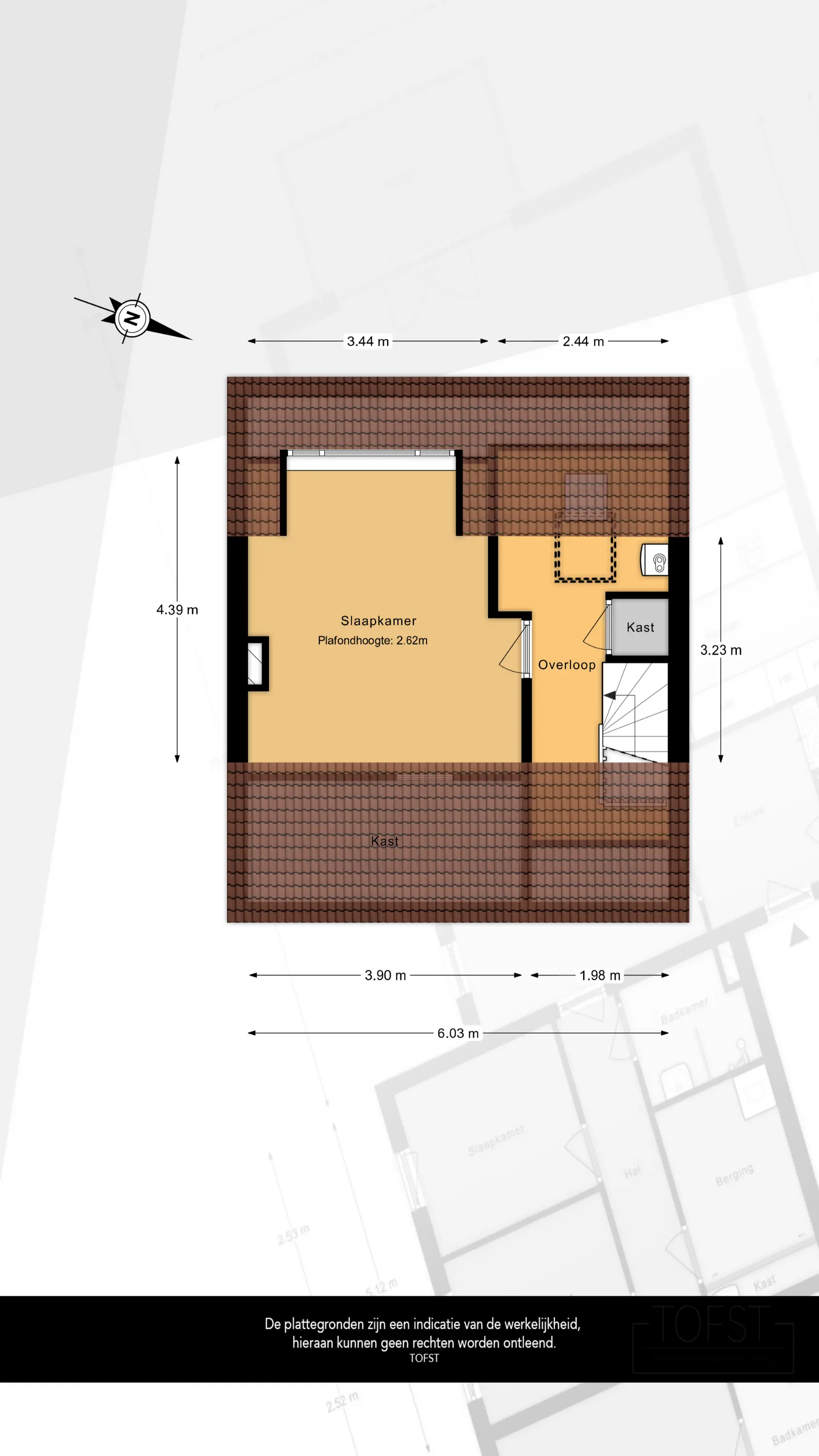
Tweede verdieping 
Vaste, dichte trap naar zolder, waar op de overloop een wasruimte is gecreëerd en zich een derde (slaap-)kamer bevindt. Ook in deze kamer zijn de wanden strak gestuukt en zijn er lichtspots in het plafond verwerkt. De aanwezige dakkapel zorgt niet alleen voor veel lichtinval, maar ook voor extra ruimte wat de kamer zeer geschikt maakt voor zowel slaapkamer als thuiswerkplek of hobbyruimte.  
 
Het Velux dakraam boven de aansluiting voor wasmachine en droger maakt de overloop heel licht, de separate kast op de overloop dient als extra bergruimte.  
 
Bijzonderheden: 
- Modern ingerichte tussenwoning met zeer hoogwaardige afwerking; 
- Sfeervolle, keurig verzorgde tuin op het zuidwesten; 
- Drie (slaap-)kamers, voorzien van elektrisch bedienbare rolluiken; 
- Moderne keuken (2017), ingericht met luxe inbouwapparatuur; 
- Badkamer vernieuwd in 2017;  
- Dak geïsoleerd in 2017; 
- Kozijnen voorzien van isolatieglas in 2023 (HR++); 
- Buitenzijde woning geschilderd in 2024;  
- Voortuin vernieuwd in 2024; 
- Achtertuin opnieuw aangelegd in 2021; 
- Uitgebreide meterkast met 12 groepen; 
- Energielabel B; 
- Oplevering in overleg
                        
                         
                                             
                                             
                                             
                                                 
                                         
                                         
                                         
                                         
                                         
                                         
                                         
                                         
                                         
                                         
                                         
                                         
                                         
                                         
                                         
                                         
                                         
                                         
                                         
                                         
                                         
                                         
                                         
                                         
                                         
                                         
                                         
                                         
                                         
                                         
                                         
                                         
                                         
                                         
                                         
                                         
                                         
                                         
                                         
                                         
                                         
                                         
                                         
                                     
                                     
                                    