Sfeervol en instapklaar 2-kamerappartement met balkon in hartje ’s-Gravenzande, ideaal voor starters! 
 
Bent u op zoek naar een instapklaar appartement waar u zó in kunt? Een plek die modern aanvoelt, goed onderhouden is én heerlijk centraal ligt? Welkom aan de Rijnvaartweg 8 in ’s-Gravenzande! Dit sfeervolle 2-kamerappartement ligt op de eerste verdieping van een kleinschalig complex, op loopafstand van het levendige centrum. Hier woont u rustig, met een groen uitzicht aan de voorzijde, maar heeft u tegelijkertijd alle voorzieningen binnen handbereik: supermarkten, gezellige winkels, cafés, het busstation én natuurlijk het strand en de duinen van ’s-Gravenzande op fietsafstand. 
 
Het appartement is de afgelopen jaren met zorg bewoond en gemoderniseerd. Dankzij de strakke afwerking, warme eikenhouten vloer en doordachte indeling voelt het geheel ruim en eigentijds aan. Ideaal voor starters of stellen die op zoek zijn naar een goed verzorgd appartement met karakter. Mogen wij u binnenkort rondleiden? 
 
 
Indeling: 
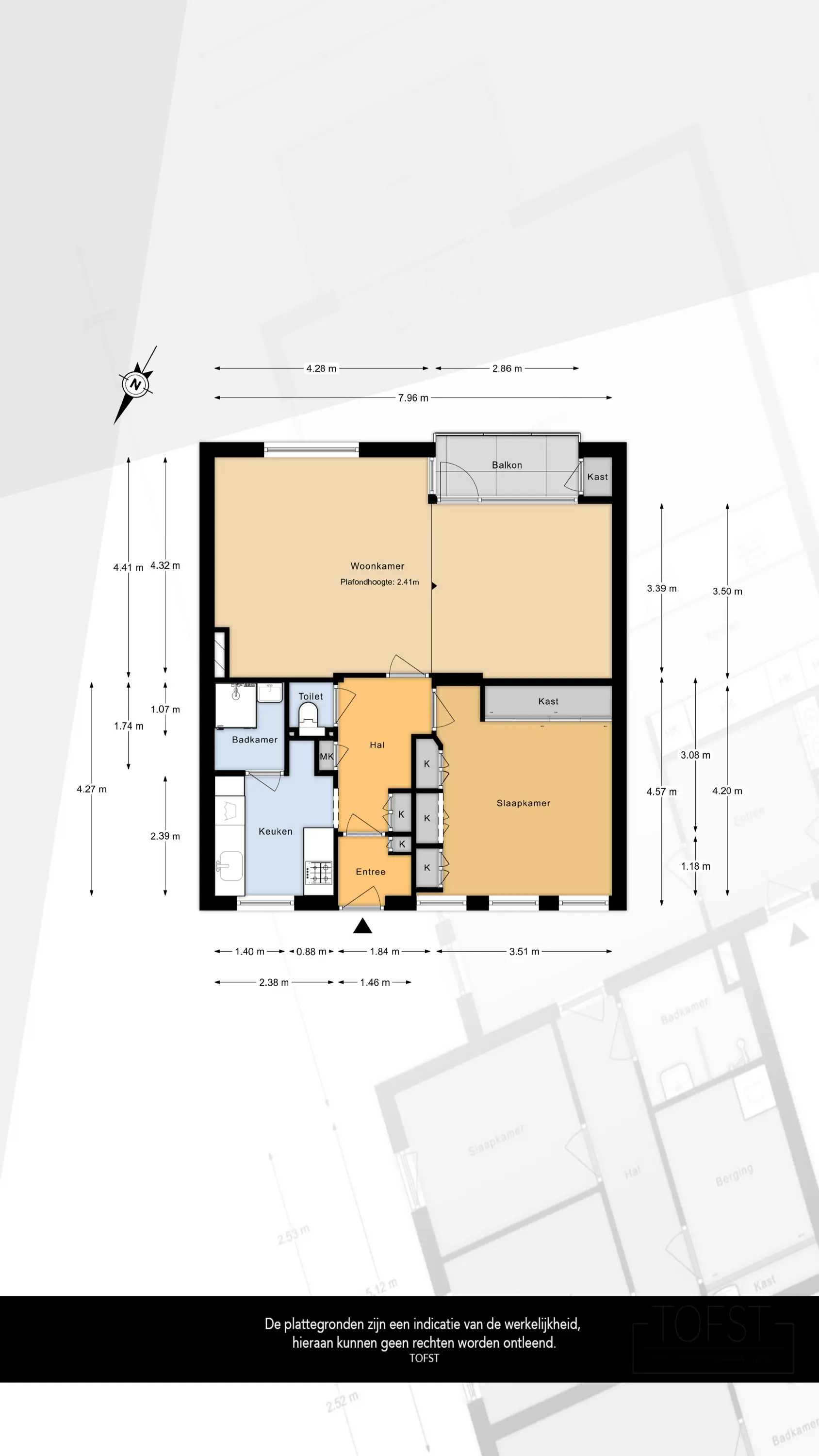
Via het gezamenlijke trappenhuis bereikt u het appartement op de eerste verdieping. U komt binnen in een tussenhal met plek voor een garderobe. Vanuit hier loopt u door naar de centrale hal/overloop, vanwaar alle vertrekken van het appartement bereikbaar zijn.  
 
De woonkamer, gelegen aan de achterzijde, is verrassend ruim en heerlijk licht door de grote raampartijen. De ruimte is strak afgewerkt met glad gestuukte wanden, een verlaagd plafond met inbouwspots en sierlijsten. Wat direct opvalt, is de prachtige eikenhouten vloer die in de hele woning is doorgelegd, deze zorgt voor een warme uitstraling en vormt een stijlvol contrast met de strak afgewerkte wanden. Door het subtiele hoogteverschil is de woonkamer opgedeeld in twee delen: een gezellige zithoek met plek voor een ruime hoekbank en een hoger gelegen eetgedeelte waar u fijn kunt tafelen met uitzicht op het balkon. Vanuit hier stapt u via de loopdeur naar het balkon, voorzien van houtlook terrastegels en voldoende ruimte voor een gezellig zitje. Een heerlijke plek om van het zonnetje te genieten! 
 
De keuken bevindt zich aan de voorzijde en heeft een praktische opstelling aan twee zijden, uitgevoerd met witte fronten en een lichtgrijs werkblad. Alle benodigde apparatuur is aanwezig: een 4-pits gasfornuis met afzuigkap, oven, vaatwasser, spoelbak met mengkraan en een losse koelkast en vriezer. De wasmachine is slim in de keuken geplaatst, waardoor in de badkamer extra ruimte is vrijgekomen. Alles bij elkaar een frisse, functionele keuken waar u zo kunt beginnen met koken! 
 
De badkamer is bereikbaar via de keuken en in 2020 gedeeltelijk gerenoveerd. Hierbij zijn onder andere twee nieuwe tegelwanden geplaatst, de douchehoek vernieuwd met een betegelde douchebak en moderne spiegelkast boven het wastafelmeubel. Verder is de badkamer voorzien van een radiator en natuurlijke ventilatie. Compact, maar netjes en praktisch ingericht. 
 
De hoofdslaapkamer bevindt zich ook aan de voorzijde en is heerlijk licht. Er is een vaste kastenwand aanwezig met veel opbergruimte, en de radiatorombouw én het tv-meubel zijn op maat gemaakt in landelijke stijl. De eiken houten vloer loopt hier mooi door en het verlaagde plafond met verlichting zorgt voor extra sfeer.  
 
Berging: 
Op de begane grond beschikt het appartement over een ruime berging van ca. 16 m². Deze ruimte biedt meer dan genoeg plek voor fietsen, seizoensspullen of hobby’s. De huidige bewoners hebben hier zelfs een praktische werkplek ingericht, ideaal voor wie (deels) thuis werkt of graag een georganiseerde opslagruimte heeft.  
 
 
Bijzonderheden: 
- Instapklaar: strakke afwerking, moderne keuken en nette badkamer; 
- Bouwjaar 1957; 
- Energielabel D; 
- Verwarming en warm water via Remeha cv-ketel (2021); 
- Dubbel glas; 
- Ruime berging van ca. 16 m² op de begane grond, momenteel ingericht als handige werkplek; 
- Gemeenschappelijke fietsenstalling in de kelder; 
- Balkonzijde geschilderd in 2023, voorzijde gepland in 2025 (VvE); 
- VvE-bijdrage: € 140,- per maand; 
- Uitvalswegen richting nabij gelegen dorpen en steden (Naaldwijk, Hoek van Holland, Den Haag) op korte rij-afstand; 
- Strand en de duinen van 's-Gravenzande op fietsafstand!; 
- Oplevering in overleg.
                        
                         
                                             
                                             
                                             
                                                 
                                         
                                         
                                         
                                         
                                         
                                         
                                         
                                         
                                         
                                         
                                         
                                         
                                         
                                         
                                         
                                         
                                         
                                         
                                         
                                         
                                         
                                         
                                         
                                         
                                         
                                         
                                         
                                         
                                         
                                         
                                         
                                         
                                    