Slotenmakerstraat 14

Naaldwijk

beschikbaar

€ 545.000,- k.k. / € 1.800,- p/m

Geinteresseerd?

Omschrijving

Multifunctionele bedrijfsruimte op bedrijventerrein "De Woerd", beschikbaar voor verkoop of verhuur.
Het betreft een ruimte op de begane grond van ca. 60 m2 B.V.O en een ruimte op de eerste verdieping van ca. 116 B.V.O.

De bedrijfsruimte is voorzien van twee toiletten, een keukenblok en diverse afsluitbare ruimtes op de begane grond en verdieping.
Het pand is tevens voorzien van betonvloeren, airconditioning, te openen ramen en lichtarmaturen in het systeemplafond.

Uitvalswegen richting Den Haag en Rotterdam bevinden zich op enkele autominuten afstand.
Er zijn twee eigen parkeerplaatsen voor de deur, daarnaast is er voldoende openbare parkeergelegenheid.

Indeling:
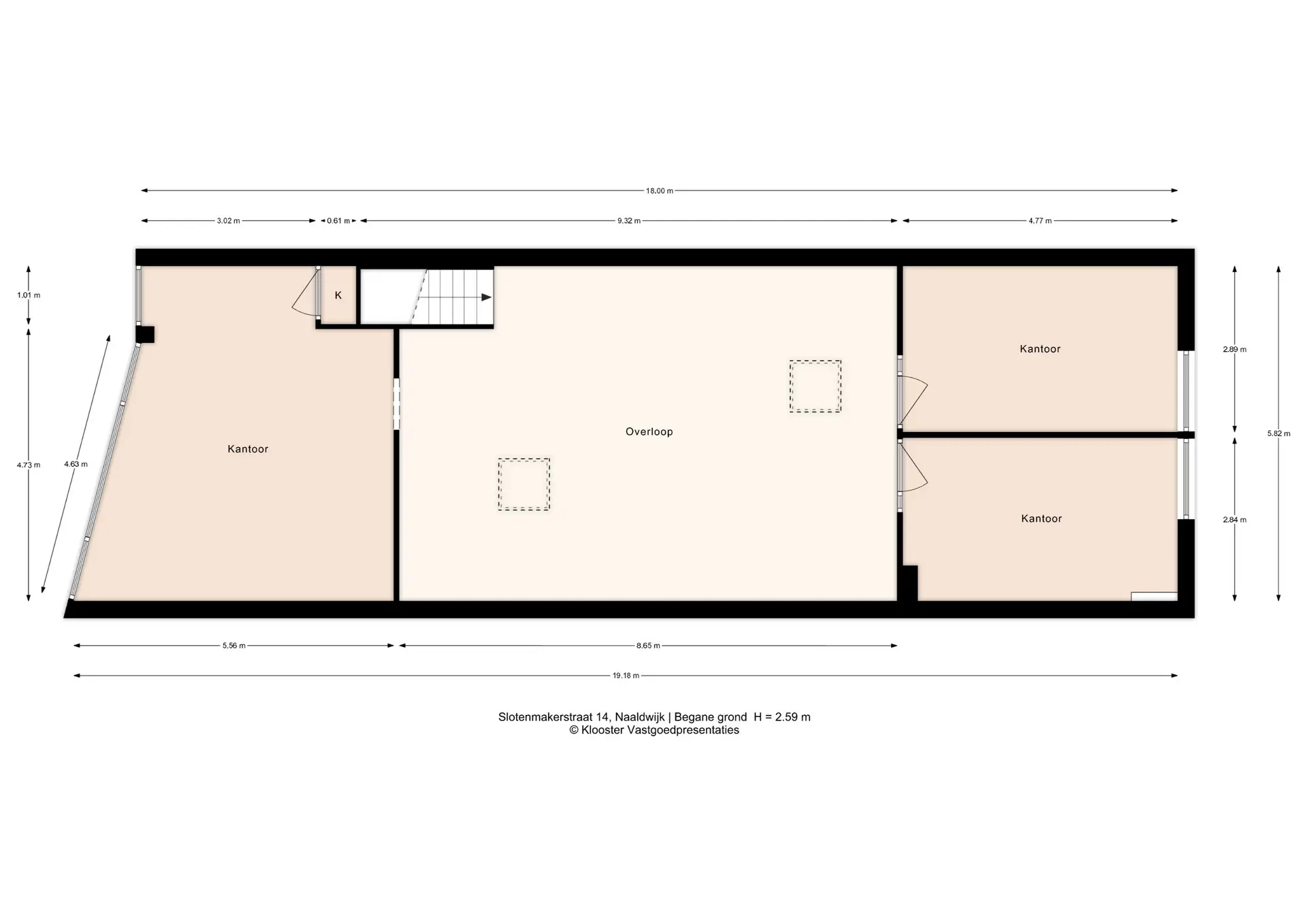
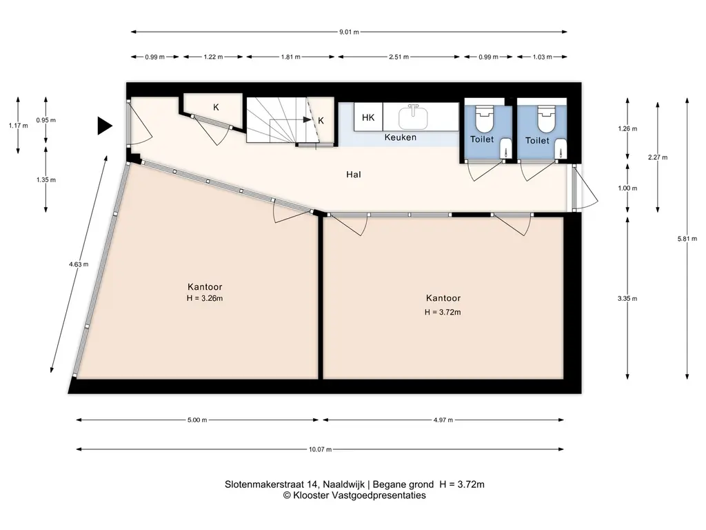
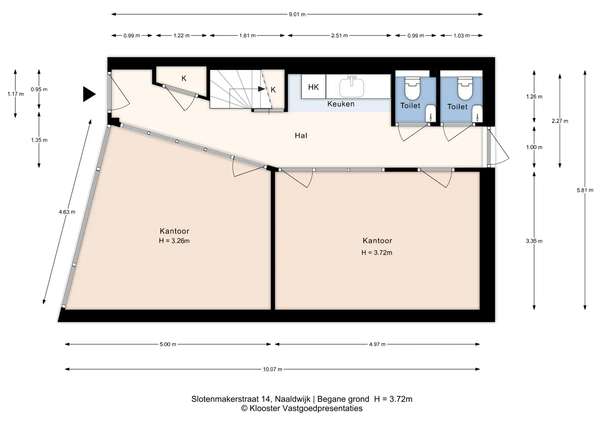
Begane grond
Loopdeur in hal met berging, vaste trapopgang, keuken, twee toiletten, achteruitgang.
Toegangsdeuren naar twee aangrenzende ruimtes, waarvan de voorste met daglicht middels grote raampartij.

Eerste verdieping
Vaste trap naar de verdieping. Centrale ruimte met twee dakkoepels en toegang tot drie afgesloten ruimtes.
Eén grote ruimte aan de voorzijde met vaste kast en raampartij over de gehele breedte. Twee ruimtes aan de achterzijde van ca. 14 m2 met raampartij, radiator en airconditioning.


De bedrijfsruimte kenmerkt zich tevens door;
- centrale ligging op bedrijventerrein De Woerd;
- ca. 170 m2 kantoorruimte (dient nog nader ingemeten te worden)
- goede bereikbaarheid;
- kwalitatief hoogwaardige kantoor- / praktijkruimte;
- twee eigen parkeerplaatsen aan de voorzijde;
- zelfstandige entree op de begane grond met hal, meterkast, trapopgang naar de verdieping;
- kantoorruimte aan de voorzijde, achtergelegen vergaderruimte;
- open keuken in de hal met inbouwapparatuur;
- eerste verdieping met kantoorruimte aan de voorzijde en twee aparte ruimtes aan de achterzijde;
- systeemplafond, vliesbehang op de wanden en TL verlichting;
- eigen gas-, water- en elektra aanwezig;
- glasvezel internet aanwezig;
- kabelgoten v.v. elektra- en data bekabeling;
- alarminstallatie en brandinstallatie aanwezig.
- actieve VvE met maandelijkse bijdrage.

Bij verhuur:
Het gehuurde: Slotenmakerstraat 14 en de eerste verdieping van Slotenmakerstraat 28
Huurprijs: € 1.800,- per maand, excl. BTW en servicekosten.

Bij koop:
Het verkochte: Slotenmakerstraat 14 en Slotenmakerstraat 28, waarvan ca. 54 m2 b.v.o. bedrijfsruimte in verhuurde staat.
Vraagprijs: € 545.000,- k.k.

Bouwjaar: ca. 2008
Oppervlakte totaal bij verhuur: ca. 177 m2 b.v.o. (ca. 61 m2 op de begane grond en ca. 116 m2 op de verdieping)
Oppervlakte totaal bij verkoop: ca. 177 m2 b.v.o. (leeg en onverhuurd) en ca. 54 m2 b.v.o. op de begane grond in verhuurde staat.

Bestemmingsplan
Bedrijfsdoeleinden voor bedrijven met categorie B3 van de staat van bedrijfsactiviteiten.
Het bestemmingsplan 'De Woerd', vastgesteld op 11 maart 2008 is van toepassing.

Bereikbaarheid
Per auto: goed bereikbaar
per openbaar vervoer: op loopafstand

Aanvaarding
In huidige staat en in nader overleg

Bij huur:
Voorschot servicekosten
In nader overleg met de verhuurder vast te stellen. Een en ander is mede afhankelijk van de wensen van de huurder.

Huurtermijn
In overleg te bepalen.

Bankgarantie
Ter grootte van drie maanden huur plus servicekosten, beiden te vermeerderen met BTW.

BTW
Verhuurder wenst te opteren voor BTW-belaste huur en verhuur. Ingeval huurder de BTW niet kan verrekenen, zal de huurprijs in overleg met huurder worden verhoogd ter compensatie van de gevolgen van het vervallen van de mogelijkheid om te opteren voor BTW-belaste huur.

Huurovereenkomst
De te sluiten huurovereenkomst zal worden opgemaakt conform het model dat door de Raad van Onroerende Zaken is vastgesteld op 30 januari 2015, met bijbehorende Algemene Bepalingen welke op 17 februari 2015 zijn gedeponeerd bij de griffie van de Rechtbank te Den Haag onder nummer 15/21.

Huurprijsherziening
De huurprijs zal voor het eerst één jaar na huuringangsdatum en vervolgens jaarlijks worden aangepast op basis van de wijziging van het maandprijsindexcijfer volgens de consumentenprijsindex (CPI), reeks Alle huishoudens (2006 = 100), gepubliceerd door het Centraal Bureau voor de Statistiek (CBS), met dien verstande, dat de huurprijs nimmer zal dalen beneden de laatst geldende huurprijs.


Bij koop
Bankgarantie / waarborgsom:
Ter grootte van 10% van de koopprijs, te voldoen binnen 7 weken na ondertekening van de koopovereenkomst.

Voorbehoud
Onderhandelingen geschieden steeds onder het uitdrukkelijke voorbehoud van goedkeuring door opdrachtgever c.q. eigenaar.

Disclaimer
Deze vrijblijvende informatie is met de grootst mogelijke zorgvuldigheid samengesteld. Voor de juistheid van deze informatie kan door Malkenhorst Makelaars echter geen aansprakelijkheid worden aanvaard, noch kan aan de vermelde informatie enig recht worden ontleend. Deze informatie is niet bedoeld als aanbod. Door aanvaarding van de vermelde condities of het uitbrengen van een daarvan afwijkend aanbod worden wij niet gebonden, ook niet tot het doen van een tegenaanbod. Een overeenkomst komt slechts tot stand door kennisgeving van een in alle opzichten en derhalve ook op ondergeschikte punten met een aanbod overeenkomende aanvaarding.
Lees meer

Kenmerken

Overdracht

Vraagprijs
€ 545.000,- k.k.
Huurprijs
€ 1.800,- p/m
Status
beschikbaar
Aanvaarding
in overleg

Bouw

Hoofdbestemming
bedrijfsruimte
Bouwjaar
2008

Bedrijfshal

Oppervlakte
55 m²
Vrije hoogte
372
Voorzieningen
Betonvloer, toilet, pantry
Bouwhoogte
372

Kantoorruimte

Oppervlakte
107 m²
Luchtbehandelingen
Airco
Voorzieningen
Inbouwarmaturen, te openen ramen
Verdiepingen
1

Terrein

Buitenruimte

Ligging
Bedrijventerrein

Plattegronden

Locatie

Downloads

Neem contact met ons op!