Vallumstraat 163

NAALDWIJK

beschikbaar

€ 425.000,- k.k.

Geinteresseerd?

Omschrijving

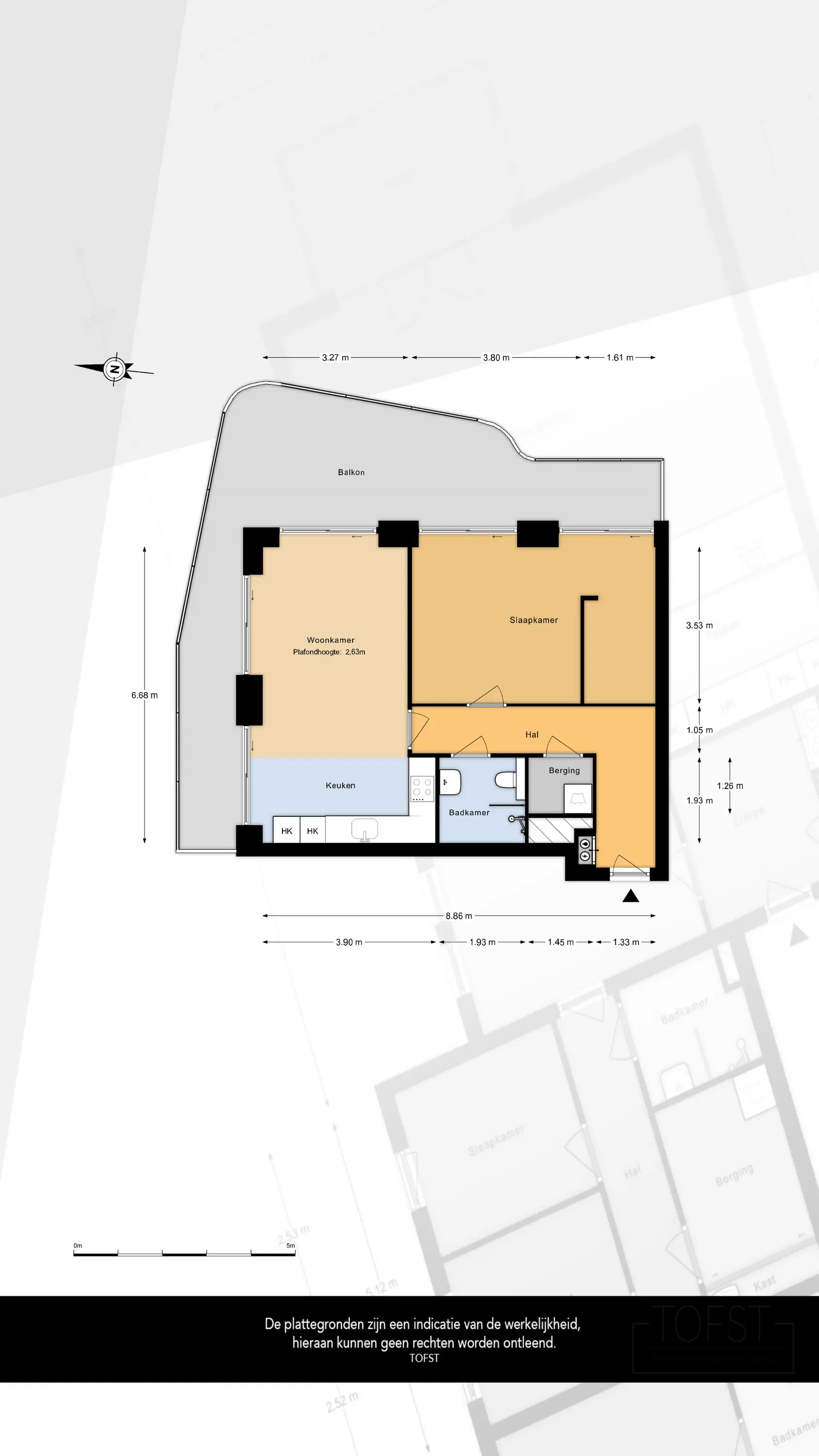
Op de vijfde verdieping van het moderne appartementencomplex aan de Vallumstraat bevindt zich dit instapklare en efficiënt ingedeelde appartement met één slaapkamer en een royale inloopkast. Vanuit de woning geniet u van een prachtig weids uitzicht over Naaldwijk en richting Hoek van Holland, met name vanaf het ruime terras is het hier heerlijk ontspannen.

Met een woonoppervlakte van ca. 63 m², een woningbrede woonkamer en een luxe open keuken biedt dit appartement een verrassend ruimtelijk gevoel. De grote raampartijen en schuifpuien zorgen voor een zee aan licht en een fijne verbinding met buiten. Dankzij energielabel A en de moderne installaties woont u hier bovendien duurzaam en comfortabel.

De woning ligt in de geliefde, kindvriendelijke wijk 'Hoogeland' in Naaldwijk. In de directe omgeving vindt u scholen, sportverenigingen, speeltuinen en winkels. Ook het gezellige centrum van Naaldwijk is eenvoudig per fiets bereikbaar.

Bent u op zoek naar een modern appartement met een royaal terras? Dan is dit uw kans!


Indeling
Begane grond – appartementencomplex
Afgesloten entree met bellentableau, videofoon en brievenbussen. Centrale hal met lift en trapopgang naar de verdiepingen. Op het afgesloten terrein beschikt u over één eigen parkeerplaats. Tevens is er een gezamenlijke fietsenberging aanwezig.

Appartement
Bij binnenkomst komt u in de ruime L-vormige hal met meterkast. Vanuit hier heeft u toegang tot de woonkamer, slaapkamer, badkamer en de separate technische/wasruimte met warmtepomp en aansluiting voor wasmachine.

De slaapkamer is ruim opgezet en biedt direct toegang tot het terras via een schuifpui. Aangrenzend bevindt zich de royale inloopkast, ideaal voor wie houdt van overzicht en opbergruimte. De moderne badkamer is compleet uitgerust met een regendouche, handdouche, wastafelmeubel met bergruimte en toilet.

Aan het einde van de hal bereikt u de lichte woonkamer met open keuken. De ruimte wordt gekenmerkt door grote raampartijen en meerdere schuifpuien naar het terras. De keuken is stijlvol uitgevoerd met een zwart werkblad, inductiekookplaat en combi-oven. Er is volop ruimte voor een gezellige eethoek.

Het riante terras van circa 34 m² loopt rondom de woning en vormt een heerlijke buitenruimte. Er is volop plek voor een loungehoek, buitentafel en wat groen. Dankzij de verschillende toegangen vanuit de woonkamer en slaapkamer voelt het terras als een verlengstuk van uw leefruimte. Hier geniet u in alle rust van de zon en het uitzicht.


Bijzonderheden
- Woonoppervlakte ca. 63 m²;
- Gelegen op de vijfde verdieping met vrij uitzicht;
- Ruime slaapkamer met royale inloopkast;
- Woningbreed terras van ca. 34 m²;
- Eén eigen parkeerplaats op afgesloten terrein;
- Moderne open keuken met inbouwapparatuur;
- Complete badkamer met regendouche;
- Warmtepomp en elektrische boiler;
- Energielabel A;
- Vloerverwarming én vloerkoeling in gehele appartement;
- Actieve VvE, bijdrage ca. € 124,65 per maand;
- Kosten voor de bronwarmte (vastrecht) zijn € 51,02 per maand;
- Oplevering in overleg, op korte termijn mogelijk.
Lees meer

Kenmerken

Overdracht

Vraagprijs
€ 425.000,- k.k.
Status
beschikbaar
Aanvaarding
in overleg

VvE checklist

Inschrijving KVK
Ja
Jaarlijkse vergadering
Ja
Periodieke bijdrage
Ja (124,65 per maand)
Reservefonds aanwezig
Ja
Onderhoudsplan
Ja
Opstalverzekering
Ja

Bouw

Soort woning
appartement
Soort appartement
portiekflat
Aantal woonlagen
1
Bouwvorm
bestaande bouw
Bouwjaar
2018
Open portiek
nee
Huidige bestemming
woonruimte
Onderhoud binnen
goed
Onderhoud buiten
goed
Voorzieningen
mechanische ventilatie, tv kabel, lift, zonnepanelen
Isolatie
volledig geisoleerd

Energie

Energielabel
A
Verwarming
vloerverwarming geheel, warmtepomp
Warm water
elektrische boiler eigendom

Oppervlakten en inhoud

Woonoppervlakte
63 m²
Bergruimte oppervlakte
6 m²
Buitenruimte oppervlakte
34 m²

Indeling

Aantal kamers
2
Aantal slaapkamers
1

Buitenruimte

Ligging
aan water, in woonwijk, vrij uitzicht

Garage / Schuur / Berging

Garage
geen garage
Parkeergelegenheid
openbaar parkeren, op eigen terrein

Plattegronden

Locatie

Downloads

Neem contact met ons op!