Zandheuvelweg 79

Naaldwijk

beschikbaar

€ 620.000,- k.k.

Geinteresseerd?

Omschrijving

Moderne gezinswoning uit 2018: LICHT, LUXE en direct INSTAPKLAAR!

In de zeer gewilde en kindvriendelijke wijk 'Woerdblok' vindt u deze perfect onderhouden tussenwoning uit 2018, een woning die ruimte met moderne afwerking perfect combineert. Met drie verdiepingen, drie volwaardige slaapkamers en een zolder, welke nu wordt gebruikt als vierde royale slaapkamer, biedt deze woning volop mogelijkheden.

De woning straalt kwaliteit uit: van een hoogwaardige PVC-vloer op de begane grond tot de strak afgewerkte keuken en badkamer. Dankzij de energiezuinige voorzieningen, vloerverwarming en zonnepanelen is wonen hier niet alleen comfortabel, maar ook duurzaam.

Op korte afstand bevinden zich het centrum van Naaldwijk, scholen, sportvoorzieningen en winkels, terwijl de rustige weg en de groene omgeving waaraan de woning is gelegen zorgen voor privacy en rust.
Wacht niet te lang met het inplannen van een persoonlijke bezichtiging en neem vandaag nog contact met ons op!


Indeling
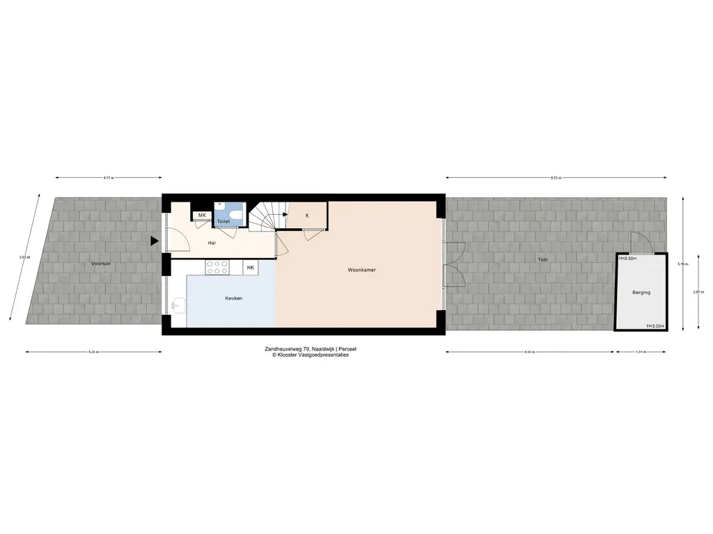
Begane grond:
De ruime en verzorgde voortuin geeft direct een uitnodigende indruk en biedt ruimte voor een gezellig zitje. Binnenkomst in ruime hal met een garderobe, de meterkast, een toiletruimte en trapopgang naar de verdiepingen.

De woonkamer is licht en royaal, voorzien van pvc-vloer met vloerverwarming en grote raampartijen. De woonkamer is slim ingedeeld met een open (leef)keuken aan de voorzijde en een riante zithoek aan de achterzijde. De open keuken is uitgevoerd in een stijlvolle L-opstelling, voorzien van een antraciet composiet werkblad en een scala aan inbouwapparatuur, inclusief een 6-pits oven-gasfornuis met afzuigkap, mengkraan, vaatwasser, vriezer en koelkast.

Openslaande deuren bieden toegang tot de fraai aangelegde achtertuin. De achtertuin is voorzien van grotendeels tuintegels, een charmante vlonderstrook en een houten berging. Buitenkraan (achterzijde woning) en tuinverlichting aanwezig. De noordwestligging en de diepte van de tuin van ca. 8,5 meter zorgt voor een prettige balans: geen overdaad aan zon, maar bijna het gehele jaar door zonnige plekjes die met de dag meebewegen. Zo is er vrijwel altijd een plek in de tuin waar de zon schijnt. ’s Middags ontspannen in de zon op de loungebank en ’s avonds dineren voor de openslaande deuren met het avondzonnetje als gezelschap.

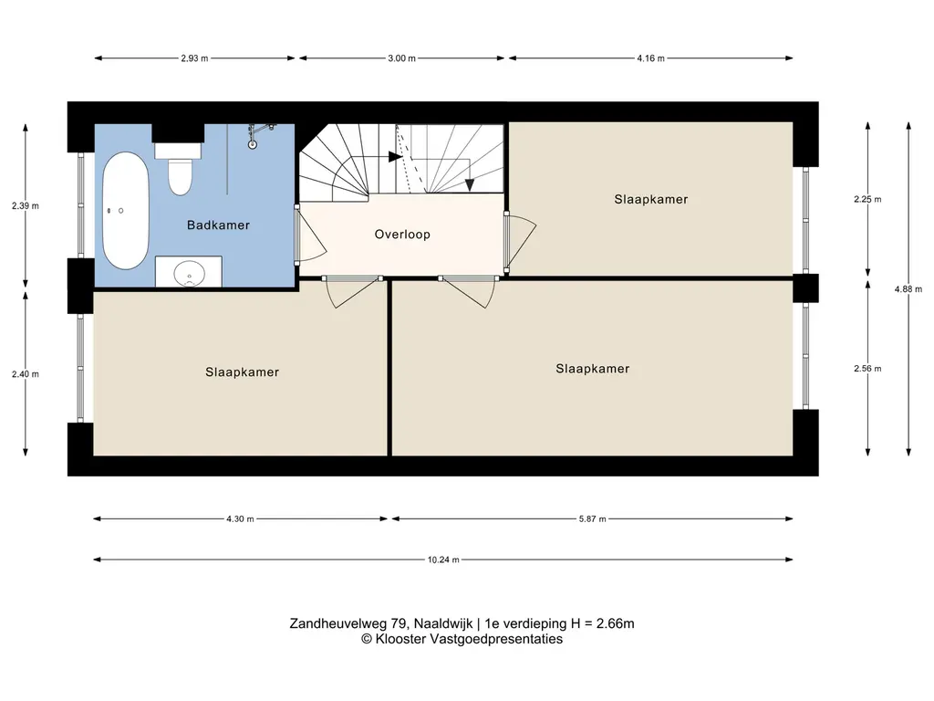
Eerste verdieping:
De eerste verdieping beschikt over drie goed bemeten slaapkamers, waarvan één aan de voorzijde van de woning en twee aan de achterzijde. Zowel de eerste als de tweede verdieping zijn voorzien van laminaat.

De moderne badkamer, gelegen aan de voorzijde van de woning, is uitgerust met een luxe ligbad, een (regen)douche, een radiator, een wastafelmeubel en een tweede toilet. De aanwezigheid van mechanische ventilatie en een te openen raam zorgen hier voor frisse lucht.

Tweede verdieping:
Een vaste trap geeft toegang tot de zolderverdieping. De zolderverdieping is goed bemeten en voelt, mede dankzij de hoogte, ook extra ruim aan. De oppervlakte is ideaal voor het gebruik als hoofdslaapkamer, werk- of hobbykamer. Bovendien beschikt deze verdieping over een praktische inloopkast en ruimte voor de wasmachine, droger en de cv-ketel (Intergas, 2018).

Dankzij een dakkapel over de volle breedte is deze verdieping verrassend licht en royaal.


Bijzonderheden:
- Moderne eengezinswoning in de duurzame woonwijk 'Woerdblok';
- Bouwjaar 2018;
- Perceel oppervlakte van ca. 127 m2;
- Woonoppervlakte van ca. 138 m2;
- Energielabel A;
- Dakkapel voorzien van kunststof kozijnen;
- Houten kozijnen in 2024 geschilderd, HR+ beglazing;
- Vloerverwarming op de begane grond aanwezig;
- 4 zonnepanelen aanwezig (2018);
- Parkeergelegenheid in en rondom de straat;
- Op korte fietsafstand van het Naaldwijkse centrum met winkels, horeca en sociale voorzieningen, evenals dichtbij scholen en sportverenigingen gelegen;
- Oplevering in overleg.
Lees meer

Kenmerken

Overdracht

Vraagprijs
€ 620.000,- k.k.
Status
beschikbaar
Aanvaarding
in overleg

Bouw

Soort woning
woonhuis
Soort woonhuis
eengezinswoning
Type woonhuis
tussenwoning
Aantal woonlagen
3
Bouwvorm
bestaande bouw
Bouwjaar
2018
Huidige bestemming
woonruimte
Onderhoud binnen
goed
Onderhoud buiten
goed
Voorzieningen
mechanische ventilatie, tv kabel, glasvezel kabel, zonnepanelen
Isolatie
volledig geisoleerd

Energie

Energielabel
A
Verwarming
cv ketel, vloerverwarming gedeeltelijk
Warm water
cv ketel
C.V.-ketel
gas gestookte combi-ketel uit 2018 van Intergas, eigendom

Oppervlakten en inhoud

Woonoppervlakte
138 m²
Perceeloppervlakte
127 m²
Inhoud
505 m³
Bergruimte oppervlakte
5 m²

Indeling

Aantal kamers
5
Aantal slaapkamers
4

Buitenruimte

Ligging
in woonwijk
Tuin
achtertuin met een oppervlakte van 43 m² en is gelegen op het noordwesten

Garage / Schuur / Berging

Garage
geen garage
Parkeergelegenheid
openbaar parkeren
Schuur/berging
vrijstaand hout

Plattegronden

Locatie

Downloads

Neem contact met ons op!