Zeewinde 22

NAALDWIJK

beschikbaar

€ 595.000,- k.k.

Geinteresseerd?

Omschrijving

In geliefde woonwijk ‘’Woerdblok’’ gelegen goed onderhouden 3-kamer appartement op de vierde verdieping van een in 2007 opgeleverd appartementencomplex. Het appartement heeft een woonkamer met veel lichtinval, twee slaapkamers en een riant balkon. Daarnaast heeft het appartement een eigen parkeerplaats en eigen berging in het souterrain.
Wat direct opvalt is het weidse uitzicht van u vanuit het appartement heeft, op heldere dagen kunt u heel ver kijken!

In de directe omgeving bevinden zich diverse voorzieningen, zoals scholen, sportfaciliteiten en openbaar vervoer en ook het centrum van Naaldwijk bevindt zich op goede loopafstand! Daarnaast bevinden zich de uitvalswegen zich binnen handbereik, kortom een goede centrale locatie in Naaldwijk & het Westland!

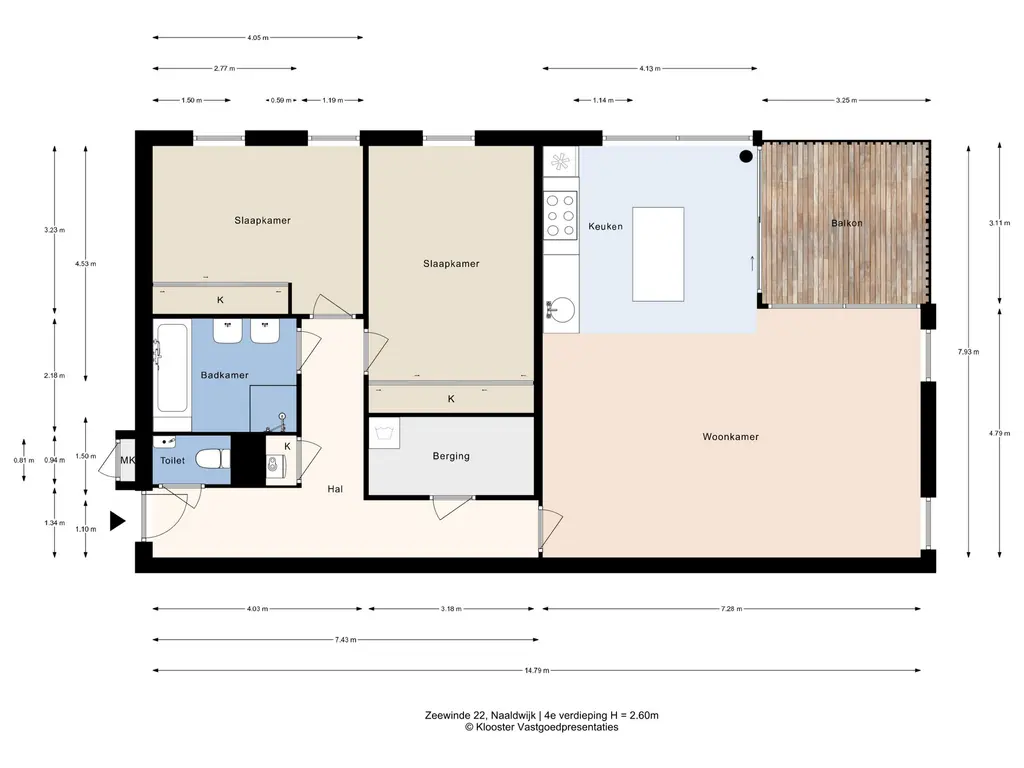
Indeling
Appartementencomplex
Gemeenschappelijke, afgesloten entree met brievenbussen en bellentableau met videofoon. In de centrale hal een trapopgang, lift en toegang tot de parkeerkelder waar zich een eigen parkeerplaats en eigen berging v.v. elektra bevinden.


Appartement - vierde verdieping
Entree in hal met lambrisering, meterkast, garderobe, toiletruimte en twee vaste bergkasten, waarvan één met aansluiting voor wasmachine en droger.
Riante woonkamer met veel lichtinval door de diverse raampartijen. Er is voldoende ruimte voor een ruime zithoek en eettafel. De open keuken keuken is heel ruimtelijk en beschikt over een wandopstelling met apart eiland. De inbouwapparatuur bestaat uit een spoelbak met mengkraan, 6-pits kookfornuis met oven en RVS afzuigkap, koelkast en vaatwasser (defect). In het eiland is diverse opbergruimte in lades en kasten, u kunt hier ook heerlijk plaatsnemen voor het ontbijt of tijdens het koken.

In het gehele appartement ligt een neutrale laminaatvloer.
Een schuifpui biedt toegang tot het terras, waar u de ochtend- en middagzon heeft en bovendien een prachtig, weids uitzicht over Naaldwijk.
Er liggen sfeervolle houten vlonderdelen.

Vanuit de hal zijn twee slaapkamers toegankelijk, beide met vaste kastenwand met schuifdeuren.
De badkamer is ingericht met ligbad, douchecabine met thermostaatkraan en dubbele wastafel, de ruimte is betegeld tot het plafond in neutrale kleurstelling.

Bijzonderheden:
- 3-kamer appartement in geliefde woonwijk Woerdblok;
- Eigen parkeerplaats en eigen berging v.v. elektra;
- Veel daglicht middels grote raampartijen;
- Actieve VvE: maandelijkse bijdrage van € 218,-;
- cv-ketel vervangen in 2023;
- Buitenkozijnen geschilderd in oktober 2025;
- Oplevering in overleg.
Lees meer

Kenmerken

Overdracht

Vraagprijs
€ 595.000,- k.k.
Status
beschikbaar
Aanvaarding
in overleg

VvE checklist

Inschrijving KVK
Ja
Jaarlijkse vergadering
Ja
Periodieke bijdrage
Ja (218,00 per maand)
Reservefonds aanwezig
Ja
Onderhoudsplan
Ja
Opstalverzekering
Ja

Bouw

Soort woning
appartement
Soort appartement
bovenwoning
Aantal woonlagen
1
Woonlaag
4
Bouwvorm
bestaande bouw
Bouwjaar
2006
Open portiek
nee
Huidige bestemming
woonruimte
Onderhoud binnen
goed
Onderhoud buiten
goed
Voorzieningen
mechanische ventilatie, tv kabel, schuifpui, glasvezel kabel
Isolatie
volledig geisoleerd

Energie

Energielabel
A
Verwarming
cv ketel
Warm water
cv ketel
C.V.-ketel
gas gestookte combi-ketel uit 2023 van Intergas HRC, eigendom

Oppervlakten en inhoud

Woonoppervlakte
107 m²
Perceeloppervlakte
720 m²
Inhoud
345 m³
Bergruimte oppervlakte
17 m²
Buitenruimte oppervlakte
10 m²

Indeling

Aantal kamers
3
Aantal slaapkamers
2

Buitenruimte

Ligging
aan rustige weg, in woonwijk, vrij uitzicht

Garage / Schuur / Berging

Garage
geen garage
Parkeergelegenheid
openbaar parkeren, parkeergarage

Plattegronden

Locatie

Downloads

Neem contact met ons op!